Europaplein
Entire apartment
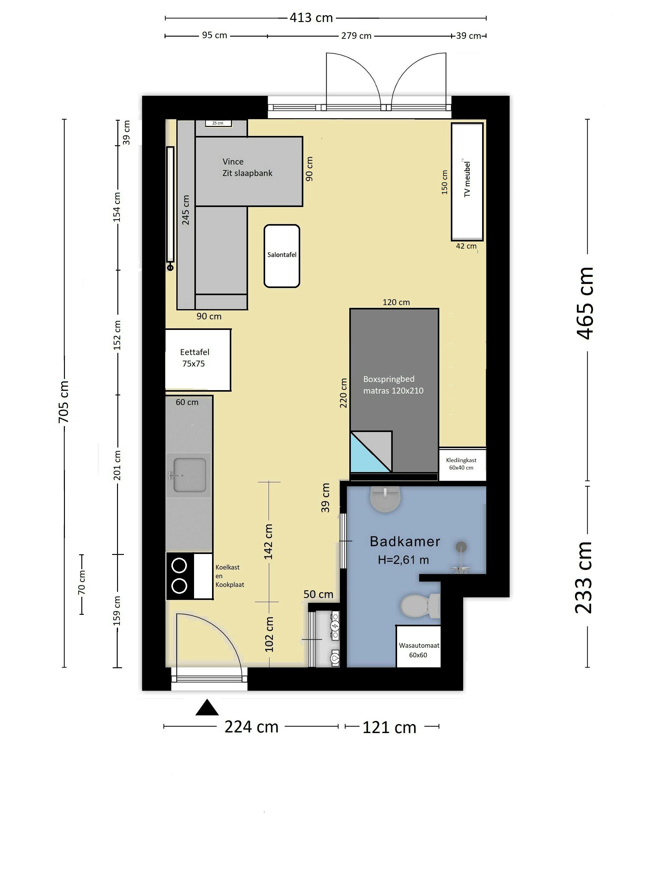
Property: 28 m²
Furnished
Space for 1 person
Studio
1 bathroom
Flexible Cancellation
Description

This modern apartment is located in the popular Southwest area of Utrecht, offering a comfortable living space in a well-connected neighborhood. Built in 2009 and featuring energy label A, the apartment is ideal for a single professional, expat, or student looking for a practical and pleasant home close to the city. The apartment offers 28 m2 of living space and is designed to make the most of every square meter. Its efficient layout provides a cozy and functional atmosphere, perfect for everyday living. Location The apartment is situated in a lively and convenient area of Utrecht. The city center can be reached by bike, and both a supermarket and train station are also within cycling distance. In addition, the nearest main road can be reached within just a few minutes, making the apartment very accessible whether you travel by bike, public transport, or car. Living and sleeping area The apartment offers a bright and comfortable living space with room to relax, work, and sleep. Its practical layout makes it easy to enjoy both comfort and convenience in one modern studio-style home. Bed size is 120x210 cm. The couch is with sleeping and folding function (can be converted into a double bed). Kitchen The kitchenette provides everything needed for daily cooking and meal preparation including a combi-microwave oven. It is a practical space that suits both short and longer stays. Bathroom The bathroom is neat and functional, designed to provide comfort and convenience for everyday use. Additional information The apartment is located in a relatively calm neighborhood with many young residents and a pleasant residential atmosphere. It is an excellent option for someone looking for a compact, efficient, and well-located home in Utrecht. Registration at the address can be discussed depending on the rental terms. We aim to provide a clean and comfortable apartment for the tenant, and we expect the apartment to be returned in the same condition in which it was received by the tenant...

Facilities and amenities
  • Private living room
  • Private toilet
  • Private kitchen
  • Private bathroom
  • Laminate flooring
  • Central heating
  • Private kitchenware
  • WiFi
Discover what's nearbyNear Transwijk, Utrecht
Listing location
House rules and preferences
  • Age:At least 21
  • Gender:No preference
  • Tenant type:Students, working professionals
  • Suitable for couples:Yes
  • Playing Musical Instruments allowed:No
  • Pets allowed:No
  • Smoking allowed:No
Tenant Protection: Smooth move, or your money backMove in and check the place out. You have 48 hours to report any problems, then we’ll send your money to the landlord.
Your money’s held safe
Confirm rentalMove in48 hours later
How rent is calculated
Monthly basis
This listing’s rent is calculated on a monthly basis. You’ll always pay the full month’s rent, regardless of your move-in and move-out dates. We call this a Monthly contract type.
Cancellation policy

Flexible cancellation

If you cancel within 24 hours of confirmation – Full refund of first month’s rent.

If you cancel when your move-in date is:

  • More than 30 days away – Full refund of first month’s rent
  • 30 to 7 days away – 50% refund of first month’s rent
  • Less than 7 days away – No refund

How to rent this place


Move-in date – Move-out date
Covered by Tenant Protection

You’re guaranteed a stress-free move-in or your money back.

Protection against the unexpected

If the landlord cancels last minute or delays your move-in, you’ll get help finding another place or a temporary hotel stay.

Quick support

If something goes wrong with your rental, we can help make it right.

Move-in with confidence

We keep your payment safe until you move in. If the place doesn’t match the description, you’ll get a refund.

Not ready to apply?Ask the landlord questions, share info, and see if there’s a match. Get the answers you need to rent with peace of mind.