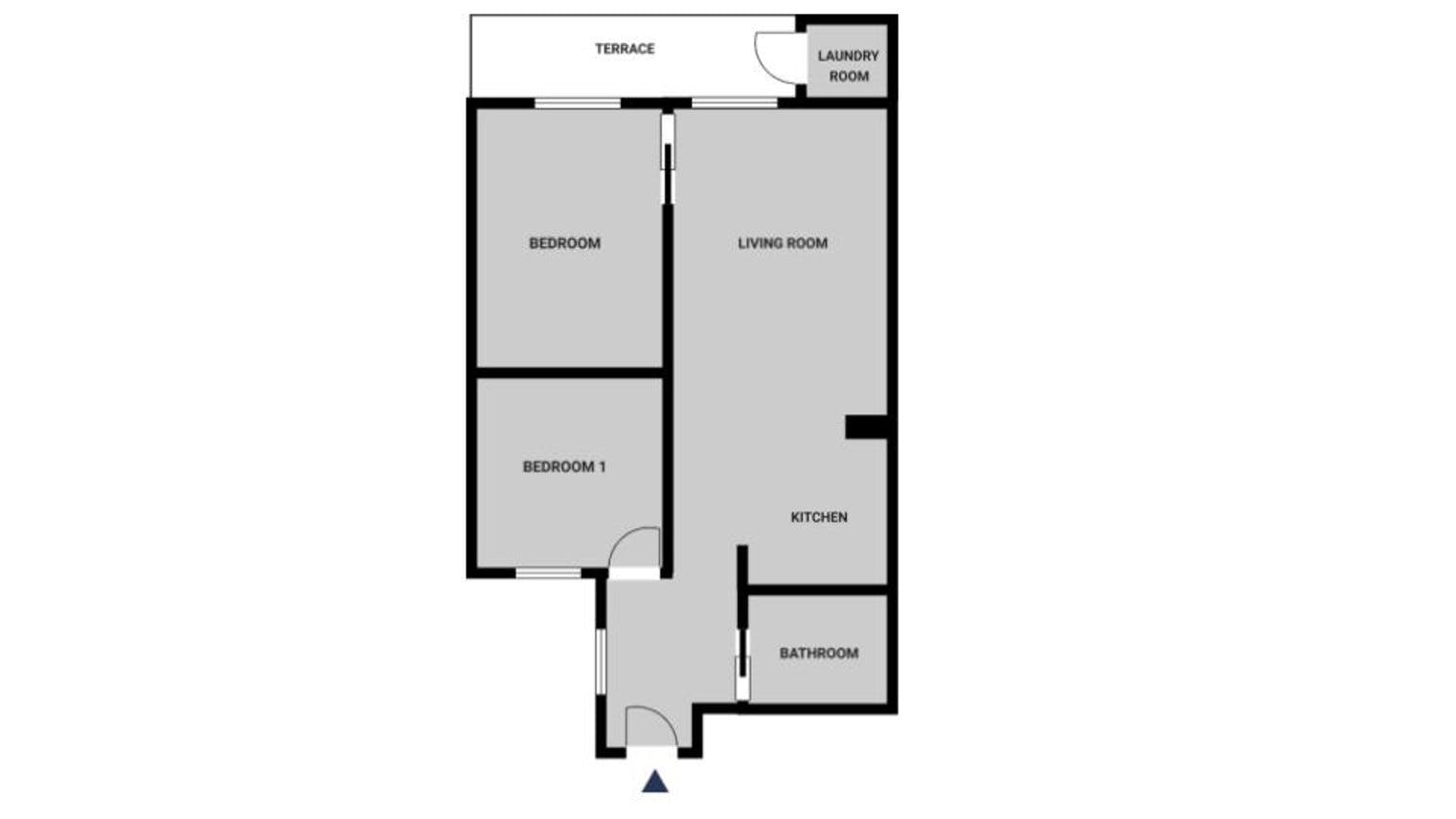
Disclaimer: Please note that the minimum stay is 32 days. Show up and start living from day one in Barcelona with this spacious two bedroom apartment. You’ll love coming home to this thoughtfully furnished, beautifully designed, and fully equipped Gothic Quarter home with stunning balcony views over the city. (ID #BCN200) Designed with you in mind Thoughtfully designed with bespoke finishes, modern furnishings, and a fully equipped kitchen, you’ll enjoy that “I’m home” feeling with this apartment. Whether you’re lounging in your sophisticated living room streaming the latest and greatest entertainment on the smart TV or premium wireless speaker, or getting some well-earned rest on the superior quality mattress with luxury linens, you’ll fall in love with everything this Gothic Quarter apartment has to offer. Sleeping arrangements Single Bed, 35.4in/90cm Queen Bed, 63in/160cm Amenities Building amenities unique to this two bedroom apartment include an on-site: - Elevator - Washing machine - Pets allowed Arrival and ongoing support Full Maintenance and Technical Support / cleaning requests at a click of a button. Other things to note This apartment has flexible lease options, allowing you to book it for one month, a year, or more. Pets are welcome, though weight limits and breed restrictions apply and may incur fees. Also note - Other apartments in this building are undergoing renovations, and you may hear construction noise inside your apartment from time to time - This apartment's central location means it can be noisy at times - Communal areas in the building are equipped with surveillance cameras All our rentals in Spain include a 1 (one) hour weekly cleaning service. This apartment is available for temporary stays only and is not suitable for tourist or permanent residential use. Upon booking, guests must provide a valid travel purpose accepted by local legislation to confirm the reservation....
If you cancel within 24 hours of confirmation – Full refund of first month’s rent.
If you cancel when your move-in date is:
