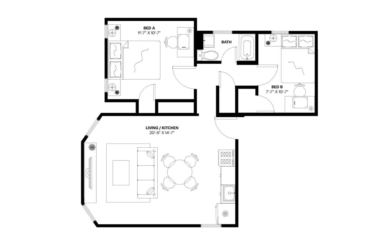
This 80 square footage room on New York City's West Harlem is a clean, charming and glossy room in a 2-bedroom apartment. The furnishing status may, or may not be adjustable for an additional fee, upon a request, depending on the availability. About this Home Newly remodeled and move-in ready, this 707-square-foot shared apartment is perfect for couples looking for a home in the New York City borough of Manhattan. Ideally located on the border of West and Central Harlem, this two-bedroom, one-bathroom unit features freshly painted walls and baseboards, new hardwood floors, an open-concept kitchen and living area, modern lighting fixtures, radiator heating, and recessed lighting. This smoke-free West Harlem apartment includes a flat-screen TV and WiFi. Rent a single room or this entire unit if you are in the market for a larger home and more space. If you are new to the area and need furniture, June can fully furnish this Manhattan apartment for an additional fee. Two cozy bedrooms that can be furnished or unfurnished accommodate either queen-size or full-size beds and additional furniture, such as nightstands and dressers or personal workspaces. Both bedrooms offer modern ceiling lights, closets for storing all your clothes, and windows and window coverings for natural light when needed. A recently renovated bathroom features a bathtub shower combination, beautiful tile floors and walls, a single-sink vanity, and a window for added ventilation. A closet outside of the bathroom offers additional storage space for coats and other clothing items. The open-concept design of the combined kitchen and living area creates an inviting atmosphere, perfect for hosting friends and entertaining guests. The eat-in kitchen area features beautiful stained wood shaker cabinets, full-size stainless steel appliances, and a new brushed chrome pullout faucet. There is ample space in this expansive room for a two-person dining table, a sectional couch, and a media console. Windows in the living area provide much-needed natural light during the day. Located to the north of the Upper West Side, West Harlem is a densely-populated area of Manhattan comprised of four unique sub-neighborhoods: Hamilton Heights, Manhattanville, Morningside Heights, and Sugar Hill. A prominent area during the Harlem Renaissance of the 1920s and 1930s, West Harlem today is one of the best residential neighborhoods in New York City. Affordable housing and proximity to esteemed educational institutions like Columbia University and the Manhattan School of Music make West Harlem an appealing neighborhood for both college students and families with kids. West Harlem offers easy access to picturesque public parks, trendy restaurants, and subway stations. Situated on the basement floor of a six-story, 1921 mixed-use building, this West Harlem apartment is less than a block from a bustling commercial corridor along Dr. Martin Luther King Jr. Boulevard. Cafes, drug stores, and restaurants are all within walking distance. A two-minute walk from the front steps of this building will get you to 125th Street station for trains on both the Sixth Avenue and Eighth Avenue lines of the New York City Subway. Your safety and comfort are our top priorities! To ensure it, we ask all our new members to complete a background and credit check and electronically sign a residency agreement. You'll need to share your ID and Social Security Number (for those in the US) with us. We'll shoot over the agreement after you book, and we kindly ask you to sign it quickly to guarantee your room. For your credit, we're looking for scores above 550-650, depending on your city and we'll need a clean criminal record too (this doesn't apply to DC). If you meet all the requirements, you will receive the agreement which you need to sign within 24 hours. We do not provide towels, linens, or other similar amenities. Guests are required to bring these items with them. We hope this setup meets your needs for an extended stay, and we look forward to hosting you! The descriptions may not always reflect the most up-to-date details. If a specific feature or amenity is important to you, kindly reach out for confirmation....
If you cancel:
