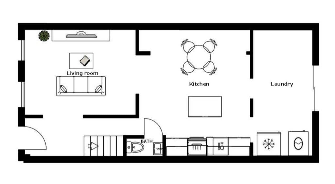
This 232 square footage room on Washington DC's (hidden)'s a functional, spacious and comfortable room in a 5-bedroom apartment. The furnishing status may, or may not be adjustable for an additional fee, upon a request, depending on the availability. For up to date prices, please indicate your move-in date, move-out date and your furnishing preference. About this Home Located on a beautiful, tree-lined street in Washington, D.C.’s Trinidad neighborhood, this massive, 3-bedroom, 2.5-bathroom shared apartment is perfect for college students attending one of the nearby schools. At 1364-square-feet, this two-story rowhouse features central heating and air conditioning, high ceilings, large windows, modern lighting fixtures, new hardwood floors, and a washer and dryer. One large bedroom downstairs can accommodate a king-size bed, nightstands, a dresser, and personal workspace. The upstairs master bedroom provides space for a full-size bed and offers a private, newly remodeled bathroom with a luxurious shower, two sinks, and a walk-in closet. The other three bedrooms can all accommodate full-size beds and desks or dressers. A spacious, eat-in kitchen downstairs boasts beautiful countertops, new stainless steel appliances, and an island bar that seats two. The half-bathroom is located in the kitchen, while the second full-bathroom is at the top of a beautiful set of stairs and features a jacuzzi bathtub and shower combination. Trinidad is a charming, predominately residential neighborhood bounded by Gallaudet University to the west, making this a popular spot among college students and faculty members. Trinidad is bordered by Highway 50 on the north and Highway 1 on the east, which makes this a convenient area for working professionals that commute west to Downtown or Capitol Hill for work. Spacious homes and affordable housing prices also attract families with kids. One of the best places to live in Washington, D.C., Trinidad is known for its leafy streets and beautiful Victorian rowhouses that can be seen in the southern portion of this neighborhood, especially along Florida Avenue. There are also numerous front porch rowhouses and some newer low and mid-rise apartment buildings sporting modern architectural designs. For a huge selection of wholesale foods and various other home goods, be sure to check out Union Market, a trendy hangout where vendors gather to sell their goods, be it fresh produce or freshly baked empanadas. If you are looking for nightlife options, take a short walk down to H Street Corridor, a 1.5-mile commercial strip of trendy bars and restaurants that hosts a weekly farmer’s market. Situated on a quiet, one-way street, this two-story Trinidad rowhouse features a small front yard with steps leading up to a beautiful front porch. An eight-minute walk will get you down to H Street Corridor for the DC Streetcar on the H Street/Benning Road Line. There is also a bus stop less than a minute away, at the corner of Trinidad Avenue and Levis Street. This property includes WiFi, a flat-screen TV, and a wooden back deck that overlooks the rear alleyway. If you are looking for more space, book a tour today and ask about the option to rent this entire apartment. Your safety and comfort are our top priorities! To ensure it, we ask all our new members to complete a background and credit check and electronically sign a residency agreement. You'll need to share your ID and Social Security Number (for those in the US) with us. We'll shoot over the agreement after you book, and we kindly ask you to sign it quickly to guarantee your room. For your credit, we're looking for scores above 550-650, depending on your city and we'll need a clean criminal record too (this doesn't apply to DC). If you meet all the requirements, you will receive the agreement which you need to sign within 24 hours. We do not provide towels, linens, or other similar amenities. Guests are required to bring these items with them. We hope this setup meets your needs for an extended stay, and we look forward to hosting you! The descriptions may not always reflect the most up-to-date details. If a specific feature or amenity is important to you, kindly reach out for confirmation....
If you cancel:
