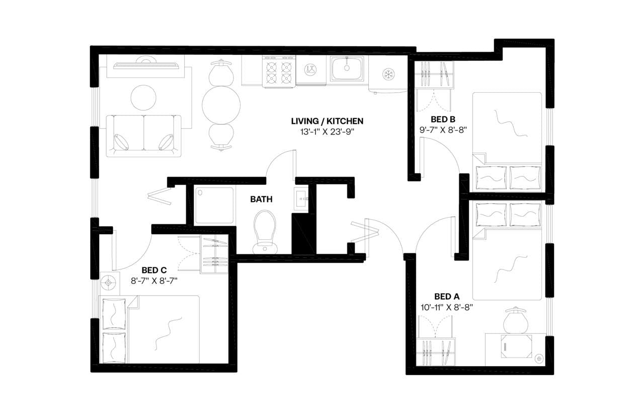
This 94-square-foot room on Boston's North End is a clean, shiny and charming room in a 3-bedroom apartment. The furnishing status may, or may not be adjustable for an additional fee, upon a request, depending on the availability. About this Home If you are looking for one of the best places to live in Boston, look no further. This 650-square-foot, three-bedroom, one-bathroom, shared apartment is located in the heart of one of the best neighborhoods. Newly refurbished, this North End apartment is located on the second floor. Each room in this beautiful apartment is large enough to accommodate a queen-size bed. It is a short eight-minute walk to the Haymarket station to catch the Orange Line and eleven minutes away from the Aquarium station for the Blue Line. Known today for its authentic Italian cuisine, numerous establishments, and variety of tourist attractions, North End is Boston’s oldest residential community. Less than half a mile in total square footage, everything is within walking distance from your home. However small, this Suffolk County neighborhood has a population of over 10,000. You will never have to worry about where to eat or what to do in North End Boston. This neighborhood is packed with historic sites such as the Old North Church and The Paul Revere House. You will no doubt get a taste of what being a true Bostonian is all about by living in the North End. Make this vibrant North End apartment your next home. You have the choice of renting a room or the entire apartment if available. Your room can be furnished upon request. This is a smoke-free apartment. WiFi is available, and there is a communal laundry room in the building. Other features include radiator heating, new appliances, and street parking. Your safety and comfort are our top priorities! To ensure it, we ask all our new members to complete a background and credit check and electronically sign a residency agreement. You'll need to share your ID and Social Security Number (for those in the US) with us. We'll shoot over the agreement after you book, and we kindly ask you to sign it quickly to guarantee your room. For your credit, we're looking for scores above 550-650, depending on your city and we'll need a clean criminal record too (this doesn't apply to DC). If you meet all the requirements, you will receive the agreement which you need to sign within 24 hours. We do not provide towels, linens, or other similar amenities. Guests are required to bring these items with them. We hope this setup meets your needs for an extended stay, and we look forward to hosting you! The descriptions may not always reflect the most up-to-date details. If a specific feature or amenity is important to you, kindly reach out for confirmation....
If you cancel:
