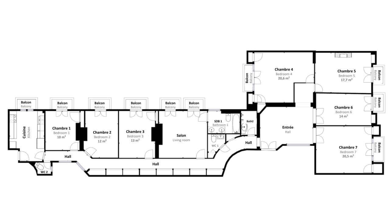
Works in the building that may cause noise during the day Furnished flat share ! All our flats are located in the city centre and close to all amenities and public transport (Metro, Tramway and Bus). This lovely private bedroom in a fully equipped, furnished and all-inclusive flatshare in Paris is a mix of comfort and design. It has got household furnishings, including a bed with pillows and duvet What is missing is your things to feel at home! The room can be locked if you need intimacy. All our rooms are fully furnished (bed, desk, wardrobe, duvet, pillows...). The flatshare can be found in the "Monceau Ternes" neighborhood, in the centre of Paris. Plenty of shops, public transports, restaurants are accessible near at hand. The apartment is on floor #6 , with elevator. It is entirely furnished and includes a fitted kitchen with fridge, kettle, toaster, pans, kitchen ustensils, crockery, microwave... The accommodation also contains an ironing board, a washing machine, an iron, a clothes rack. You will also find cleaning items already provided in the apartment: broom, dustpan and brush, bagless hoover, mop and bucket... Every furnished flatshare includes all bills: electricity, water, housing insurance, condominium fees, household waste tax, unlimited wi-fi. All our flats are fully equipped (washing machine, dishes, decoration...) by our teams, who also take care of the technical and material maintenance. Minimum stay : 1 mois Apartment eligible for CAF up to 258€ / month. The CAF for Caisse d'allocations familiales is a free public service eligible for all, including foreigners and can help you financially to pay part of your housing according to your situation whether you are French or foreign. To find out the potential amount of your assistance, go to the CAF website and complete the online APL (housing assistance) estimate. Service fee : from 690€ The service fee covers the writing of the lease but also the assistance throughout your stay. The service fee covers the repair and maintenance of the equipment as well as access to our ultra-reactive support in case of need for intervention in your accommodation. Deposit : 1100...
If you cancel:
