Barbara Street
Entire apartment
Property: 1302 sqft
Furnished
Space for 6 people
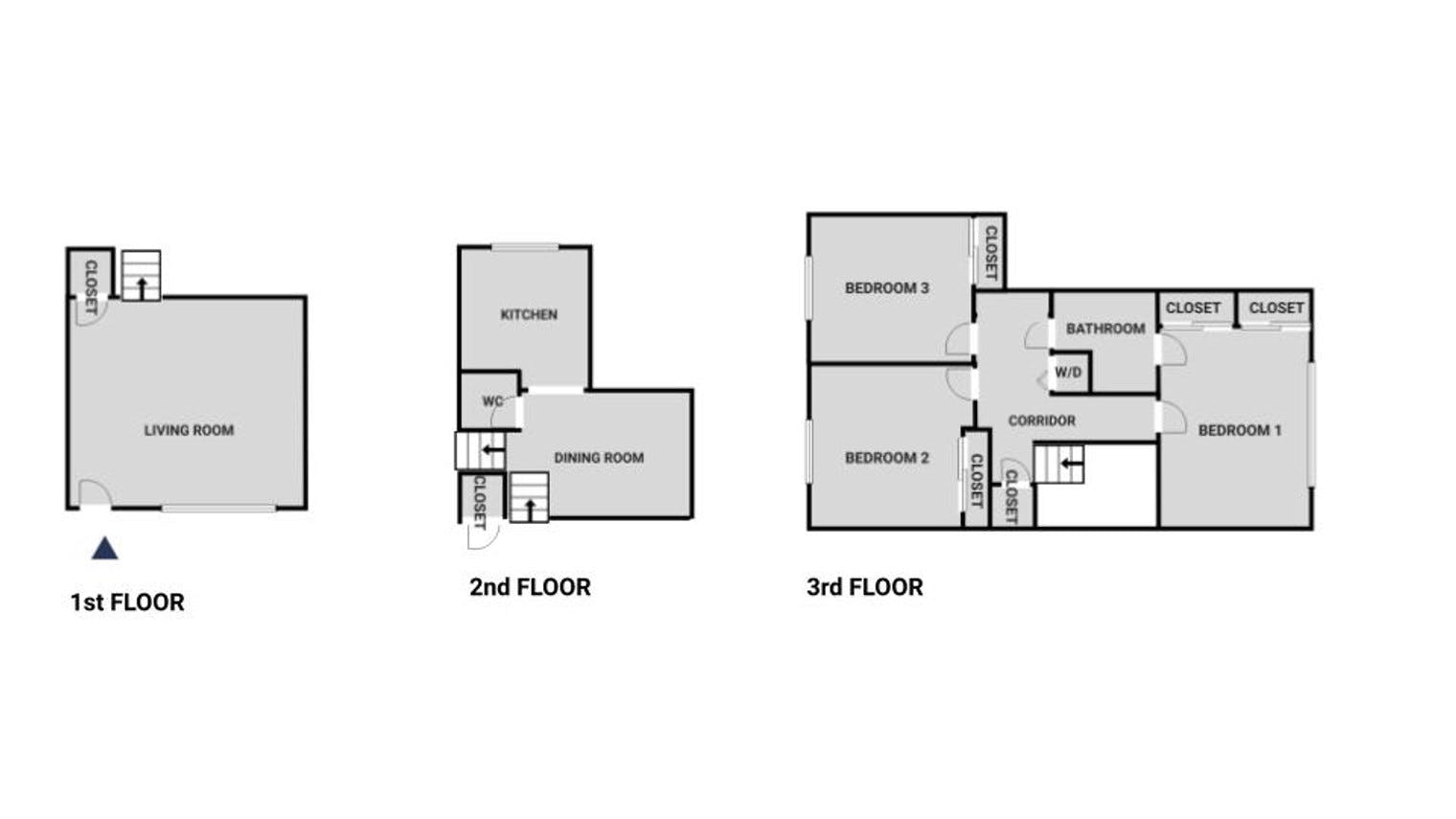
3 bedrooms
No deposit
Description

Please, note that the minimum stay for this accommodation is 32 days. Discover the best of Redondo Beach, with this three bedroom apartment in South Redondo. It’ll be easy to simply show up and start living in this fashionably furnished apartment with its fully equipped kitchen, stylish living room, and our dedicated, on-the-ground support. (ID #LAX661) Designed with you in mind Gorgeous furniture, fully equipped kitchen, smart TV, and a premium wireless speaker are just a few of the amenities you’ll find inside this three bedroom apartment. Ideally located in Redondo Beach, you’ll find a lot to love outside as well. When you’re ready to relax, you’ll be happy to discover every bedroom comes with superior quality mattresses. We handle everything so you can simply show up and start living. This apartment also offers in-apartment laundry. Sleeping arrangements King Bed, 70.8in/180cm Queen Bed, 63in/160cm Queen Bed, 63in/160cm Amenities Building amenities unique to this three bedroom apartment include an on-site: - Dryer - Washing machine - Parking - Pets allowed Arrival and ongoing support Full Maintenance and Technical Support / cleaning requests at a click of a button. Other things to note Building amenities may have an extra cost. This apartment has flexible lease options, allowing you to book it for one month, a year, or more. Pets are welcome, though weight limits and breed restrictions apply and may incur fees. Parking is offered based on availability and is subject to a fee. Please keep in mind that this is a walk up building. Completion of the Background check via a link is mandatory after the booking confirmation. All occupants, and anyone booking on an occupant's behalf, will be subject to a background check, which will include a criminal and credit history to the extent permitted by law. United States citizens, U.S. permanent residents, and non U.S. citizens with work visas must provide a social security number to complete the background check. Should guests not meet requirements or decide not to complete these screenings, the reservation must be cancelled by guests. In case of students, proof of University enrollment and a parents screening are mandatory for the confirmation of a booking...

Facilities and amenities
  • Private living room
  • Private toilet
  • Private kitchen
  • Private bathroom

  • Central heating
  • Private kitchenware
  • WiFi
  • Bed
Discover what's nearbyNear South Redondo, Redondo Beach
Listing location
House rules and preferences
  • Age:No preference
  • Gender:No preference
  • Tenant type:Students, working professionals
  • Suitable for couples:Yes

  • Pets allowed:Negotiable
  • Smoking allowed:No
Tenant Protection: Smooth move, or your money backMove in and check the place out. You have 48 hours to report any problems, then we’ll send your money to the landlord.
Your money’s held safe
Confirm rentalMove in48 hours later
How rent is calculated
Daily basis
This listing’s rent is calculated on a daily basis. For the first and last months of your stay, you’ll only pay for the exact number of days in your rental period — just like a hotel. We call this a Daily contract type. To confirm your rental, you’ll need to pay one month’s rent in full. Any excess rent you pay for the first month will be subtracted from the next month’s rent.
Cancellation policy

Strict cancellation

If you cancel:

  • Within 24 hours of confirmation – Full refund of first month’s rent
  • After 24 hours of confirmation – No refund

How to rent this place

If you're ready to rent, here’s what to do:

  1. Select your dates to check availability.
  2. Click Apply to rent.
  3. Fill in a quick rental application and send an intro message.
  4. Add your supporting documents and payment details to pre-authorize a potential payment.
  5. If the landlord accepts your rental application, we’ll collect payment to confirm your stay. If they don’t, your payment will be automatically canceled.

At HousingAnywhere, in-person viewings are not supported — so everyone has an equal chance to rent, no matter where you are in the world. To help you make an informed decision, we recommend:

  1. Messaging the landlord on HousingAnywhere to ask any questions.
  2. Requesting more photos, video tours, or floor plans.
  3. Read up on Tenant Protection to learn how you’re covered if something goes wrong.

Use the ‘Message landlord’ button to start a secure conversation on our platform. You can ask questions, discuss terms, and safely exchange documents.

Keeping your conversation on HousingAnywhere protects your privacy and helps you avoid scams. All your messages are also saved in one place for easy access and as a record of your agreements.

Once your rental is confirmed, we’ll share the landlord’s contact info so you can arrange your move-in.

After your rental is confirmed on HousingAnywhere, you and the landlord will receive each other’s contact details. You can then contact them outside our platform, or continue messaging on HousingAnywhere. You can pay future months’ rent and other rental costs using our payment request feature.

Tenant Protection is our service to help you rent with peace of mind. We hold all payments you make through our platform before move-in, including the first month's rent and any deposit. After you arrive, you have 48 hours to check that the place is as you expected. We only send your money to the landlord if everything is okay.

Watch this short video to see all the ways we keep you safe, from secure payments to support with finding a new place. For more details, you can also read about Tenant Protection.

Listing not available
This listing is not available anymoreBut don't worry — similar homes pop up often. Leave your email and we'll notify you when something similar is listed.
Covered by Tenant ProtectionYou’re guaranteed a stress-free move-in or your money back.
Protection against the unexpectedIf the landlord cancels last minute or delays your move-in, you’ll get help finding another place or a temporary hotel stay.
Quick supportIf something goes wrong with your rental, we can help make it right.
Move-in with confidenceWe keep your payment safe until you move in. If the place doesn’t match the description, you’ll get a refund.
How you’re protected