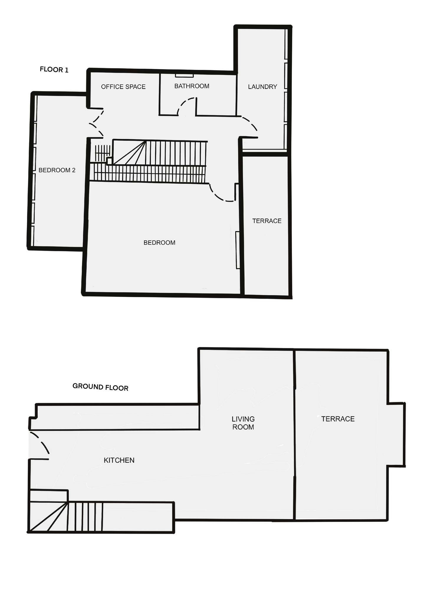
This magnificent duplex has 2 bedrooms plus 1 studio or office. It is located in the centre of the Sant Andreu neighbourhood, in the north of Barcelona City. At only 2.3 km from the beach. It is completely refurbished and has all the comforts. It is in a quiet neighbourhood of Barcelona but located on a commercial axis, full of terraces and shops, right in front of the metro stop Onze de Setembre (L9 and L10). The flat has WiFi and high speed cable connection, 3 air conditioning units, heating, washing machine, dryer, 75" Smart TV, magnificent private terraces of 18 m2 and 8 m2 with magnificent clear views to various orientations. The flat has a fully equipped kitchen with plenty of utensils and appliances available. There are 2 bedrooms with natural light. The master bedroom of 24 m2, with built-in wardrobe of 4 m long x 3 m high. Large mirror 2m x 1.40m. The second bedroom is a double room, with sensational views to Collserola and Sant Andreu (north of Barcelona). The property has a complete bathroom with shower and WC. There is a private terrace of 18 m2 with clear views. All this makes the flat the perfect place to work, relax and enjoy the good temperature of Barcelona all year round. It also has another solarium terrace of 10 m2, with shower. The flat is very well connected, next to Onze de Setembre metro station (L-9 and L-10) and 50 metres from the bus stop with connections to the whole city (including the city centre and the beach). In the same street you have three Bicing stations (shared service of mechanical and electric bicycles). La Mar Bella beach is only 10 minutes away by bike. Sant Andreu is an attractive and quiet neighbourhood in the northeast of Barcelona, very well connected. It is highly valued by people who prefer to live in a less turistic neighbourhood, but perfectly communicated with the centre and with a excellent offer of leisure and services. The flat is located in a commercial street full of shops and terraces. Also in this district are two of Barcelona's largest shopping centres, Heron City and La Maquinista, which stand out for offering a full programme of leisure activities. Metro: Onze de Setembre (L9) (1 minute from home). Train: Sant Andreu Comtal and Sant Andreu Arenal Bus: 11, 34, 126, 133, H6, H8, N9, V31...
If you cancel:
If you're ready to rent, here’s what to do:
At HousingAnywhere, in-person viewings are not supported — so everyone has an equal chance to rent, no matter where you are in the world. To help you make an informed decision, we recommend:
Use the ‘Message landlord’ button to start a secure conversation on our platform. You can ask questions, discuss terms, and safely exchange documents.
Keeping your conversation on HousingAnywhere protects your privacy and helps you avoid scams. All your messages are also saved in one place for easy access and as a record of your agreements.
Once your rental is confirmed, we’ll share the landlord’s contact info so you can arrange your move-in.
Tenant Protection is our service to help you rent with peace of mind. We hold all payments you make through our platform before move-in, including the first month's rent and any deposit. After you arrive, you have 48 hours to check that the place is as you expected. We only send your money to the landlord if everything is okay.
Watch this short video to see all the ways we keep you safe, from secure payments to support with finding a new place. For more details, you can also read about Tenant Protection.
