Gußhausstraße
Entire apartment
Property: 65 m²
Furnished
Space for 3 people
2 bedrooms
Flexible Cancellation
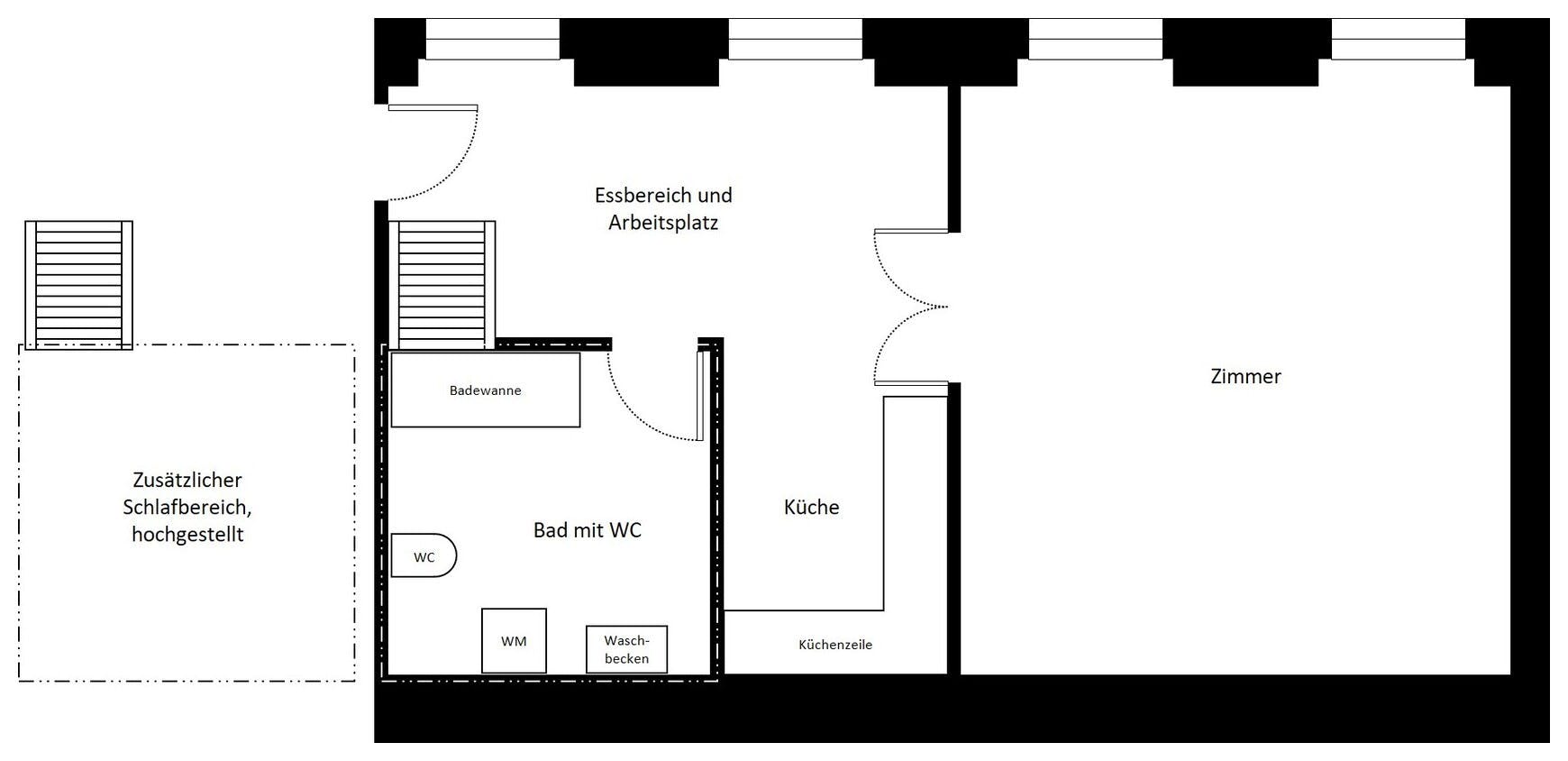
Description

+++ For English see below +++ Vollmöblierte Wohnung hinter der Wiener Karlskirche neben dem TU-Campus befristet zu vermieten. Ideal für Paare! Im 1. Stock (entspricht 2. Stock aufgrund Zwischenstocks, Lift vorhanden), Schlafzimmer, , Wohnküche mit Essbereich, Arbeitsbereich mit Gästebett über der Wohnküche, Bad mit WC. Repräsentativer Altbau mit Parkettböden, Doppelflügeltüren, hohen Räumen. Die Wohnung liegt äußerst zentral, direkt hinter der Wiener Karlskirche. Der Fußweg zum TU-Hauptgebäude beträgt ca. 5 Minuten und das Institut für Elektrotechnik und Informationstechnik befindet sich im Nebenhaus. Ebenfalls 5 Minuten Fußweg braucht man zur U-Bahn-Station Karlsplatz (U1, U2, U4 und viele Straßenbahnlinien). Das Stadtzentrum (Innenstadt) ist ebenfalls zu Fuß in 5 Minuten erreichen. Im Haus befindet sich außerdem das berühmte Alt-Wiener Gasthaus "Buchecker und Sohn" und im Nachbarhaus ein Spar Supermarkt. Provisionsfrei, direkt vom Eigentümer. ------------------ Centrally located!!! Fully furnished studio room apartment directly next to the TU campus and close to Karlsplatz. Best suited for singles. The apartment is located on the second floor (elevator available) and comprises a bedroom, a kitchen with a dining area, a workspace with a guest bed above the kitchen, bathroom with toilet. The apartment is fully furnished incl. washing machine, kitchen incl. dishwasher, TV, internet and wifi as well as equipped with towels, dishes and bed linen. The apartment is located in a traditional Viennese old city palace. The apartment is centrally located, in close proximity to "Karlsplatz". Walking distance to the m(hidden)uilding of the technical university is 5 minutes, the Faculty for Electrical Engineering and Information Technology is located in the neighboring building. The central subway hub "Karlsplatz" is located 5 minutes away (U1, U2, U4 and several tram lines). The Vienna city center (1st district) can be reached within 5 minutes. No real estate agent fees, rented directly from the owner...

Facilities and amenities
  • Private living room
  • Private toilet
  • Private kitchen
  • Private bathroom
  • Wood flooring
  • Gas heating
  • Private kitchenware
  • WiFi
Discover what's nearbyNear 4. Bezirk, Vienna
Listing location
House rules and preferences
  • Age:No preference
  • Gender:No preference
  • Tenant type:Students, working professionals
  • Suitable for couples:Yes
  • Playing Musical Instruments allowed:Negotiable
  • Pets allowed:Yes
  • Smoking allowed:Outside only
Tenant Protection: Smooth move, or your money backMove in and check the place out. You have 48 hours to report any problems, then we’ll send your money to the landlord.
Your money’s held safe
Confirm rentalMove in48 hours later
How rent is calculated
Monthly basis
This listing’s rent is calculated on a monthly basis. You’ll always pay the full month’s rent, regardless of your move-in and move-out dates. We call this a Monthly contract type.
Cancellation policy

Flexible cancellation

If you cancel within 24 hours of confirmation – Full refund of first month’s rent.

If you cancel when your move-in date is:

  • More than 30 days away – Full refund of first month’s rent
  • 30 to 7 days away – 50% refund of first month’s rent
  • Less than 7 days away – No refund

How to rent this place

If you're ready to rent, here’s what to do:

  1. Select your dates to check availability.
  2. Click Apply to rent.
  3. Fill in a quick rental application and send an intro message.
  4. Add your supporting documents and payment details to pre-authorize a potential payment.
  5. If the landlord accepts your rental application, we’ll collect payment to confirm your stay. If they don’t, your payment will be automatically canceled.

At HousingAnywhere, in-person viewings are not supported — so everyone has an equal chance to rent, no matter where you are in the world. To help you make an informed decision, we recommend:

  1. Messaging the landlord on HousingAnywhere to ask any questions.
  2. Requesting more photos, video tours, or floor plans.
  3. Read up on Tenant Protection to learn how you’re covered if something goes wrong.

Use the ‘Message landlord’ button to start a secure conversation on our platform. You can ask questions, discuss terms, and safely exchange documents.

Keeping your conversation on HousingAnywhere protects your privacy and helps you avoid scams. All your messages are also saved in one place for easy access and as a record of your agreements.

Once your rental is confirmed, we’ll share the landlord’s contact info so you can arrange your move-in.

After your rental is confirmed on HousingAnywhere, you and the landlord will receive each other’s contact details. You can then contact them outside our platform, or continue messaging on HousingAnywhere. You can pay future months’ rent and other rental costs using our payment request feature.

Tenant Protection is our service to help you rent with peace of mind. We hold all payments you make through our platform before move-in, including the first month's rent and any deposit. After you arrive, you have 48 hours to check that the place is as you expected. We only send your money to the landlord if everything is okay.

Watch this short video to see all the ways we keep you safe, from secure payments to support with finding a new place. For more details, you can also read about Tenant Protection.

Excellent Landlord

Move-in date – Move-out date
Not ready to apply?Ask the landlord questions, share info, and see if there’s a match. Get the answers you need to rent with peace of mind.
Covered by Tenant ProtectionYou’re guaranteed a stress-free move-in or your money back.
Protection against the unexpectedIf the landlord cancels last minute or delays your move-in, you’ll get help finding another place or a temporary hotel stay.
Quick supportIf something goes wrong with your rental, we can help make it right.
Move-in with confidenceWe keep your payment safe until you move in. If the place doesn’t match the description, you’ll get a refund.
How you’re protected