Confirmed
Calle Párroco Antonio González Abato
1 tenant has successfully called this place home
Private room in apartment
Bedroom: 10 m²
Property: 108 m²
Furnished
Space for 1 person
3 housemates (mixed)
Flexible Cancellation
Floor: 3
Description

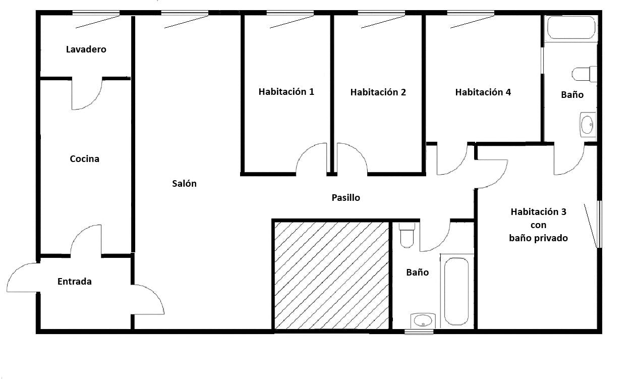
Room with air conditioning❄. 🏠Included in the Price*💵: 🧹2 weekly cleanings of common areas. 🛜 Wi-Fi. 🛠 Maintenance. (If you have any problem in the house or incident during your stay, we are there to solve it) 🛡 Civil liability insurance. (Protect against damages they may cause to the property, neighbourhood, and block of the property, as well as third parties.) 🔔 24/7 attention through our flat manager so you can dedicate yourself to studying and enjoying your stay. *The higher price corresponds to the months of September to June and the lower price to the summer months of July and August. In case of making a reservation in July or August for more than two months, only those that cover until June will be accepted. Premium hosting service. 🏡Apartment Overview Magnificent four-bedroom flat, refurbished and furnished. The furniture and fittings are brand new. The bedrooms are spacious and bright. Each room has air conditioning and heating. Bedroom three has a private bathroom. It is located in a quiet area and within a fantastic community with a dedicated concierge. It is halfway between the Viapol Campus and the Reina Mercedes Campus. Very close to the Virgen del Rocío Hospital commuter train station and opposite a large park where you can unwind after a day of studying. 🛏️Your Private Room The room has a bed, air conditioning, desk and chair, closet and bedside table. 🌆Prime Location on Calle Parroco Antonio Gonzales Abato 10. The property is located in the Tiro de Línea neighborhood, which is a well-maintained and quiet community. It is halfway between the Viapol Campus and the Reina Mercedes Campus. It is very close to the Virgen del Rocío Hospital commuter train station. 🚏Distance from the main Campus/Universities: Hospital Virgen del Rocío 12 min walk. Campus Reina Mercedes 18 min walk. Campus Nervión/Viapol de la Universidad de Sevilla 11 min by bus and 22 min walk. Rectorado de la Universidad de Sevilla 23 min by bus and 36 min walk. Centro de la ciudad/Catedral 31 min by bus and 48 min walk. Universidad Loyola 44 min by bus. Universidad Pablo de Olavide 49 min by bus. 📋 Policies and Additional Information: 🔴IMPORTANT🔴: It is necessary after booking by Housing to complete the following steps in order to complete your booking 100%: 1 Complete the google form that will be sent to you by the owner. 2 Sign the rental contract that will be sent to you by the landlord filled in with the data you provided in the form you filled in previously. 3 Pay by bank transfer the amounts described in the rental contract. Normally these are: deposit + admin fee + surcharge (if any). 💰Other cost: Admin Fee 150€. To be paid by bank transfer on signing the rental contract. Deposit: 1 month. To be paid by bank transfer on signing the rental contract. Utility costs or bills: 35€ per month Check out cleaning fee of room 35€ (mandatory). We will charge it at check-out, subtracting it from the deposit. Please note that there is a 💶surcharge💶** for bookings less than or equal to 6 months: Stays from 4 to 6 months: +7.5% extra cost. Must be paid at the time of signing the contract. Stays from 1* to 3 months: +10%extra cost. Must be paid at the time of signing the contract. *Only stays of 1 or 2 months are allowed in the summer months (July and August) and on special occasions. **There is no surcharge for short stays during the summer months. 🛎️Check ins - weekdays from 9am to 5pm. Out of opening hours, with a limit until 22:00 hours, at an additional cost to be paid by the tenant: Monday to Thursday: 20€. Friday to Sunday: 30€. OPTIONAL SERVICES: 🛌🏻Bed linen (loan): 49€. (one-off payment) We will charge it at check-out, subtracting it from the deposit. Includes: cotton sheets and pillowcase, duvet and bedspread. Final cleaning included. 🛁Towels (loan): 25€. (one-off payment) We will charge it at check-out, subtracting it from the deposit. Including: bath towel, hand towel and toilet towel. towel. Final wash included. 🧹Cleaning of the bedroom: Weekly: 40€/month Fortnightly: 22€/month Monthly: 13€/month Extraordinary one-time cleaning: 25€ (one-time payment...

Facilities and amenities
  • Unisex bathroom
  • Shared living room
  • Shared toilet
  • Shared kitchen
  • Stone flooring
  • Electrical heating
  • Shared kitchenware
  • WiFi
Discover what's nearbyNear Polígono Sur, Seville
Listing location
House rules and preferences
  • Age:At least 18
  • Gender:No preference
  • Tenant type:Students, working professionals
  • Suitable for couples:No
  • Playing Musical Instruments allowed:Negotiable
  • Pets allowed:No
  • Smoking allowed:No
Tenant Protection: Smooth move, or your money backMove in and check the place out. You have 48 hours to report any problems, then we’ll send your money to the landlord.
Your money’s held safe
Confirm rentalMove in48 hours later
How rent is calculated
Half-monthly basis
This listing's rent is calculated on a Half-monthly basis. For your first and last months, if you stay for 14 days or less, you'll pay half that month's rent. If you stay for 15 days or more, you'll pay the full month's rent. All other full months are charged in full. To confirm your rental, you'll pay one month's rent in full. Any excess rent you pay for the first month will be subtracted from your next month's rent.
Cancellation policy

Flexible cancellation

If you cancel within 24 hours of confirmation – Full refund of first month’s rent.

If you cancel when your move-in date is:

  • More than 30 days away – Full refund of first month’s rent
  • 30 to 7 days away – 50% refund of first month’s rent
  • Less than 7 days away – No refund
Rental registration number
ESHFNT00004102600058944100400000000000000000000000008
This number confirms the place is registered with local authorities as a rental.

How to rent this place

Excellent Landlord

Move-in date – Move-out date
Not ready to apply?Ask the landlord questions, share info, and see if there’s a match. Get the answers you need to rent with peace of mind.
Covered by Tenant ProtectionYou’re guaranteed a stress-free move-in or your money back.
Protection against the unexpectedIf the landlord cancels last minute or delays your move-in, you’ll get help finding another place or a temporary hotel stay.
Quick supportIf something goes wrong with your rental, we can help make it right.
Move-in with confidenceWe keep your payment safe until you move in. If the place doesn’t match the description, you’ll get a refund.
How you’re protected