Dirschauer Straße
Entire apartment
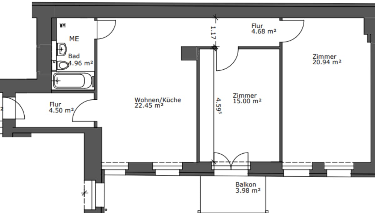
Property: 77 m²
Furnished
Space for 2 people
2 bedrooms
Description

Welcome to this centrally located 73-square-meter apartment in the heart of Friedrichsh(hidden)erlin, providing an ideal living space for a maximum of two occupants. The apartment features two separate bedrooms, making it well-suited for families or flat shares. The spacious and bright eat-in kitchen is a focal point, equipped with a dishwasher, oven, kettle, toaster, and various kitchen utensils, inviting residents to enjoy shared cooking experiences. The balcony offers a delightful view of the inner courtyard, accessible to all tenants, as is the community space on the ground floor. The modernly designed bathroom includes a bathtub for relaxation. After completing the booking for each resident, the landlord requires the submission of the following documents for verification: Copy of ID card Employment contract Proof of salary Special regulations apply to students, necessitating national guarantees or advance payment of the entire rent. Upon request, we are pleased to issue certificates of accommodation to residents. Please be aware that HousingAnywhere is an online booking platform. Therefore exchanging contact details and offering viewings is not possible. If you would like to reserve this accommodation, send me a booking request or a message and please mention your age and occupation. I look forward to meeting you...

Facilities and amenities
  • Private living room
  • Private toilet
  • Private kitchen
  • Private balcony

  • Central heating
  • Private kitchenware
  • WiFi
  • Living room furniture
Discover what's nearbyNear Friedrichshain, Berlin
Listing location
House rules and preferences
  • Age:No preference
  • Gender:No preference
  • Tenant type:Students, working professionals

  • Pets allowed:No
  • Smoking allowed:No
Tenant Protection: Smooth move, or your money backMove in and check the place out. You have 48 hours to report any problems, then we’ll send your money to the landlord.
Your money’s held safe
Confirm rentalMove in48 hours later
How rent is calculated
Daily basis
This listing’s rent is calculated on a daily basis. For the first and last months of your stay, you’ll only pay for the exact number of days in your rental period — just like a hotel. We call this a Daily contract type. To confirm your rental, you’ll need to pay one month’s rent in full. Any excess rent you pay for the first month will be subtracted from the next month’s rent.
Cancellation policy

Strict cancellation

If you cancel:

  • Within 24 hours of confirmation – Full refund of first month’s rent
  • After 24 hours of confirmation – No refund

How to rent this place

If you're ready to rent, here’s what to do:

  1. Select your dates to check availability.
  2. Click Apply to rent.
  3. Fill in a quick rental application and send an intro message.
  4. Add your supporting documents and payment details to pre-authorize a potential payment.
  5. If the landlord accepts your rental application, we’ll collect payment to confirm your stay. If they don’t, your payment will be automatically canceled.

At HousingAnywhere, in-person viewings are not supported — so everyone has an equal chance to rent, no matter where you are in the world. To help you make an informed decision, we recommend:

  1. Messaging the landlord on HousingAnywhere to ask any questions.
  2. Requesting more photos, video tours, or floor plans.
  3. Read up on Tenant Protection to learn how you’re covered if something goes wrong.

Use the ‘Message landlord’ button to start a secure conversation on our platform. You can ask questions, discuss terms, and safely exchange documents.

Keeping your conversation on HousingAnywhere protects your privacy and helps you avoid scams. All your messages are also saved in one place for easy access and as a record of your agreements.

Once your rental is confirmed, we’ll share the landlord’s contact info so you can arrange your move-in.

After your rental is confirmed on HousingAnywhere, you and the landlord will receive each other’s contact details. You can then contact them outside our platform, or continue messaging on HousingAnywhere. You can pay future months’ rent and other rental costs using our payment request feature.

Tenant Protection is our service to help you rent with peace of mind. We hold all payments you make through our platform before move-in, including the first month's rent and any deposit. After you arrive, you have 48 hours to check that the place is as you expected. We only send your money to the landlord if everything is okay.

Watch this short video to see all the ways we keep you safe, from secure payments to support with finding a new place. For more details, you can also read about Tenant Protection.

Excellent Landlord

Only 1 place left
Not ready to apply?Ask the landlord questions, share info, and see if there’s a match. Get the answers you need to rent with peace of mind.
Covered by Tenant ProtectionYou’re guaranteed a stress-free move-in or your money back.
Protection against the unexpectedIf the landlord cancels last minute or delays your move-in, you’ll get help finding another place or a temporary hotel stay.
Quick supportIf something goes wrong with your rental, we can help make it right.
Move-in with confidenceWe keep your payment safe until you move in. If the place doesn’t match the description, you’ll get a refund.
How you’re protected