Carrer de la Creu Coberta
From €635
Private room in apartment
Bedroom: 15 m²
Property: 150 m²
Furnished
Space for 1 person
6 housemates (mixed)
Flexible Cancellation
Description

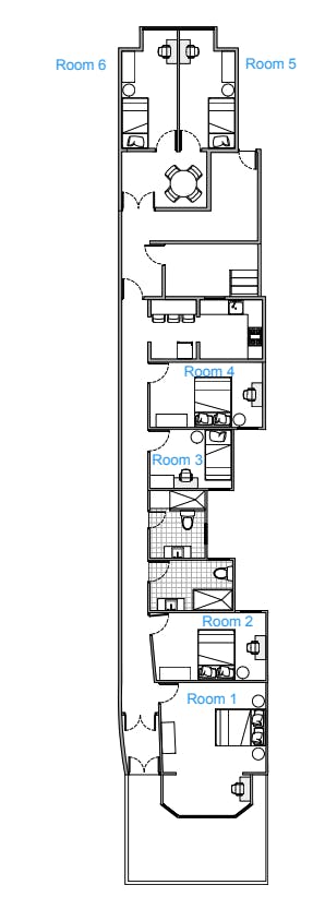
Move to this fully equipped design apartment, which will give you a unique experience in terms of comfort and design. Located in an unbeatable area. What better than cooking or watching movies with your roommates? Our apartments have been renovated and decorated to create a cozy and homely atmosphere. Our purpose is not only born with the need to provide colinvings with the highest standards of design and comfort, it was born with the purpose of generating a community so that you can make the most of your experience in Barcelona and make friends for life. This flat has 6 rooms for a maximum of 6 co-livers. The apartment has a kitchen, two full bathrooms, all renovated; a terrace; and a living room with open kitchen. Don't worry about anything else, our price is all-inclusive, supplies (electricity, gas and water), Wi-Fi and cleaning of common areas once a week. Join our colivers community of students and young workers. "...

Facilities and amenities
  • Unisex bathroom
  • Shared living room
  • Shared toilet
  • Shared kitchen

  • Unknown flooring
  • Electrical heating
  • Shared kitchenware
  • WiFi
Discover what's nearbyNear Hostafrancs, Barcelona
Listing location
No guarantor? Choose HousingAnywhere Rent Guarantee
This landlord may ask for a guarantor. HousingAnywhere Rent Guarantee saves you the hassle of finding one and comes with extra damage protection. It costs only 3% of your total contract value. Learn more
House rules and preferences
  • Age:20 - 33
  • Gender:No preference
  • Tenant type:Students, working professionals
  • Suitable for couples:No

  • Playing Musical Instruments allowed:No
  • Pets allowed:No
  • Smoking allowed:Outside only
Tenant Protection: Smooth move, or your money backMove in and check the place out. You have 48 hours to report any problems, then we’ll send your money to the landlord.
Your money’s held safe
Confirm rentalMove in48 hours later
How rent is calculated
Monthly basis
This listing’s rent is calculated on a monthly basis. You’ll always pay the full month’s rent, regardless of your move-in and move-out dates. We call this a Monthly contract type.
Cancellation policy

Flexible cancellation

If you cancel within 24 hours of confirmation – Full refund of first month’s rent.

If you cancel when your move-in date is:

  • More than 30 days away – Full refund of first month’s rent
  • 30 to 7 days away – 50% refund of first month’s rent
  • Less than 7 days away – No refund

How to rent this place

If you're ready to rent, here’s what to do:

  1. Select your dates to check availability.
  2. Click Apply to rent.
  3. Fill in a quick rental application and send an intro message.
  4. Add your supporting documents and payment details to pre-authorize a potential payment.
  5. If the landlord accepts your rental application, we’ll collect payment to confirm your stay. If they don’t, your payment will be automatically canceled.

At HousingAnywhere, in-person viewings are not supported — so everyone has an equal chance to rent, no matter where you are in the world. To help you make an informed decision, we recommend:

  1. Messaging the landlord on HousingAnywhere to ask any questions.
  2. Requesting more photos, video tours, or floor plans.
  3. Read up on Tenant Protection to learn how you’re covered if something goes wrong.

Use the ‘Message landlord’ button to start a secure conversation on our platform. You can ask questions, discuss terms, and safely exchange documents.

Keeping your conversation on HousingAnywhere protects your privacy and helps you avoid scams. All your messages are also saved in one place for easy access and as a record of your agreements.

Once your rental is confirmed, we’ll share the landlord’s contact info so you can arrange your move-in.

After your rental is confirmed on HousingAnywhere, you and the landlord will receive each other’s contact details. You can then contact them outside our platform, or continue messaging on HousingAnywhere. You can pay future months’ rent and other rental costs using our payment request feature.

Tenant Protection is our service to help you rent with peace of mind. We hold all payments you make through our platform before move-in, including the first month's rent and any deposit. After you arrive, you have 48 hours to check that the place is as you expected. We only send your money to the landlord if everything is okay.

Watch this short video to see all the ways we keep you safe, from secure payments to support with finding a new place. For more details, you can also read about Tenant Protection.


Not ready to apply?Ask the landlord questions, share info, and see if there’s a match. Get the answers you need to rent with peace of mind.
Covered by Tenant ProtectionYou’re guaranteed a stress-free move-in or your money back.
Protection against the unexpectedIf the landlord cancels last minute or delays your move-in, you’ll get help finding another place or a temporary hotel stay.
Quick supportIf something goes wrong with your rental, we can help make it right.
Move-in with confidenceWe keep your payment safe until you move in. If the place doesn’t match the description, you’ll get a refund.
How you’re protected