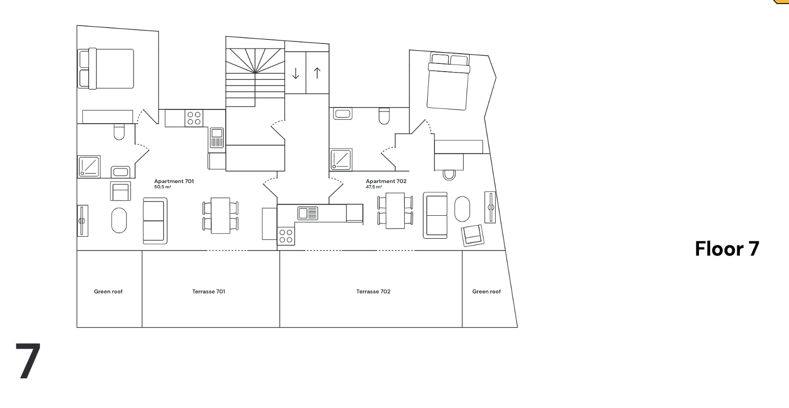
Discover the perfect living space in the heart of Antwerp with this upscale one-bedroom apartment located in the prestigious (hidden) residence. Spanning 51 sqm, this private two-room apartment offers a bright, welcoming atmosphere designed for comfortable urban living. The spacious living room features large windows that flood the space with natural light, complemented by a cozy terrace ideal for relaxing or enjoying a meal outdoors. A stylish, four-person dining table and a large sofa with a TV make this a perfect space for entertaining or unwinding after a day exploring the city. The apartment comes fully furnished with elegant decor, providing a move-in-ready experience. The fully equipped kitchen boasts modern appliances including ceramic cooking plates, oven, hood, dishwasher, microwave, kettle, and comprehensive dinnerware — perfect for preparing your favorite meals with ease. Adjacent to the kitchen, the bedroom showcases a 160x200 bed, ample storage, and premium bedding for a restful sleep. The private bathroom includes a shower and toilet, with a washing machine conveniently located within. Designed with convenience in mind, this apartment includes high-speed internet, heating, and all essential amenities. Rental charges cover water, internet, building maintenance, and utilities within reasonable consumption limits, ensuring a hassle-free stay. Located just minutes from supermarkets, restaurants, bars, gyms, cinemas, and the historic center, everything you need is at your doorstep. Excellent public transportation options, including Antwerpen Opera (Metro and Tram lines), are within a 3-minute walk, providing easy access across the city. Additional residence amenities include bicycle parking, a social lounge, and a gym, making this an exceptional choice for contemporary city living in Antwerp...
If you cancel:
If you're ready to rent, here’s what to do:
At HousingAnywhere, in-person viewings are not supported — so everyone has an equal chance to rent, no matter where you are in the world. To help you make an informed decision, we recommend:
Use the ‘Message landlord’ button to start a secure conversation on our platform. You can ask questions, discuss terms, and safely exchange documents.
Keeping your conversation on HousingAnywhere protects your privacy and helps you avoid scams. All your messages are also saved in one place for easy access and as a record of your agreements.
Once your rental is confirmed, we’ll share the landlord’s contact info so you can arrange your move-in.
Tenant Protection is our service to help you rent with peace of mind. We hold all payments you make through our platform before move-in, including the first month's rent and any deposit. After you arrive, you have 48 hours to check that the place is as you expected. We only send your money to the landlord if everything is okay.
Watch this short video to see all the ways we keep you safe, from secure payments to support with finding a new place. For more details, you can also read about Tenant Protection.
