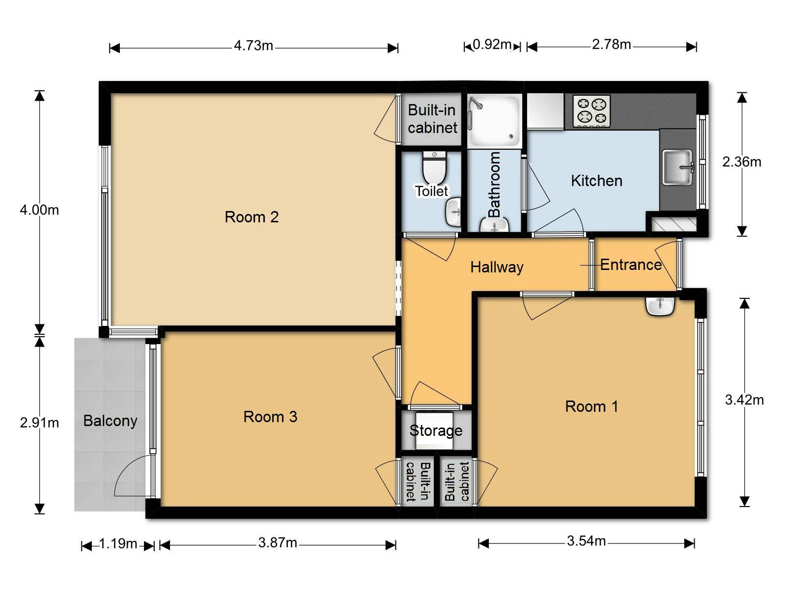
The room is located in a 3 bedroom shared apartment in the heart of city center (Beurs/Blaak) located on the 6th floor with great views (the building has an elevator). You will be sharing this place with one person only. The apartment is been refurbished and has new furniture, fully equipped modern kitchen and bathroom. The pictures attached will be the actual pictures of the apartment. - No Agency fee, directly from landlord - Registration is possible for every tenant - Fully furnished including all accessories - Prices are inclusive of utilities (i.e. gas, water, electricity and high speed internet) - Parking permits are available upon request Details of the Room (room number 2 – 18 m2, see attached floor plan): Spacious room and has a full window facing the city center (Markthal). This room is fully furnished with a single bed (extendable to a double bed) and additional storage under the bed, built in closet, design desk and chair. Built in Kitchen: - Oven - Washing machine - Dryer - Fridge with freezer - Stove - Dishwasher - Microwave - Water cooker Modern Bathroom and WC: - Includes shower cabin - Luxury sink and storage cabinet - Accessories In short, this is the perfect place to enjoy a luxury city life in Rotterdam....
If you cancel:
