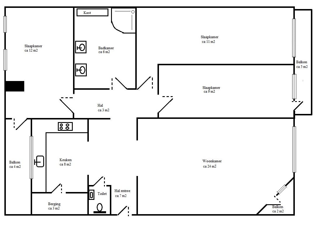
Op fraaie locatie in de wijk Fokkesteeg gelegen ruim, licht 4-kamer appartement. Dit mooie appartement ligt aan een doodlopende straat met ruim voldoende gratis parkeermogelijkheden voor de deur. Ideaal gesitueerd t.o.v. diverse voorzieningen zoals winkels (o.a. Cityplaza), openbaar vervoer, scholen, huisarts, apotheek e.d.. Omschrijving / Indeling: Dit keurig onderhouden 4-kamer appartement is op de 1e verdieping gelegen in een kleinschalig appartementencomplex. Begane grond: Centrale hal, afgesloten trappenhuis met intercom en toegang tot de berging in de onderbouw. 1e verdieping: Bij binnenkomst treft u de riante hal aan met toiletruimte, vanuit de hal heeft u toegang tot zowel de keuken als woonkamer. De nette ruime keuken is voorzien van diverse apparatuur en geeft toegang naar de bijkeuken welke is voorzien van wasmachine aansluiting. Vanuit de ruime, lichte woonkamer heeft u uitzicht over de groenvoorziening met grote vijverpartij. Terug in de hal heeft u toegang naar een 2e hal vanwaar de 3 slaapkamers en de badkamer te bereiken zijn welke een oppervlakte hebben van respectievelijk ca. 13 m2, 11 m2, 9 m2 en 6 m2. De geheel betegelde badkamer is voorzien van twee wastafelmeubels, Kast en een heerlijke douchecabine. Verder beschikt dit heerlijke appartement over 3 balkons waarvan 1 aan de voorzijde en 2 aan de achterzijde gelegen zijn, s’morgens heeft u de opkomende zon in de keuken en s’middags heeft u de zon heerlijk in de woonkamer tot dat hij ondergaat. In het Kort: - Ruim, licht 4-kamer appartement - Woonoppervlakte : ca. 85m2 - Gebouwgeb. buitenruimte : ca. 12 m2 - Externe bergruimte : ca. 6,00 m2 - Bouwjaar : 1982 - Gratis parkeergelegenheid voor de deur - Opleveringsniveau is gestoffeerd - Beschikbaar per 15-02-2023 - Huurprijs 1600,00 euro inclusief VVE kosten, exclusief Elektra, water, tv/internet, gemeentelijke belastingen - Verwarming d.m.v. stadsverwarming (voorschot inbegrepen in VVE Kosten) - Bewoning geschikt voor een stelletje, 2 woningdelers of een gezin...
If you cancel:

You’re guaranteed a stress-free move-in or your money back.
If the landlord cancels last minute or delays your move-in, you’ll get help finding another place or a temporary hotel stay.
If something goes wrong with your rental, we can help make it right.
We keep your payment safe until you move in. If the place doesn’t match the description, you’ll get a refund.