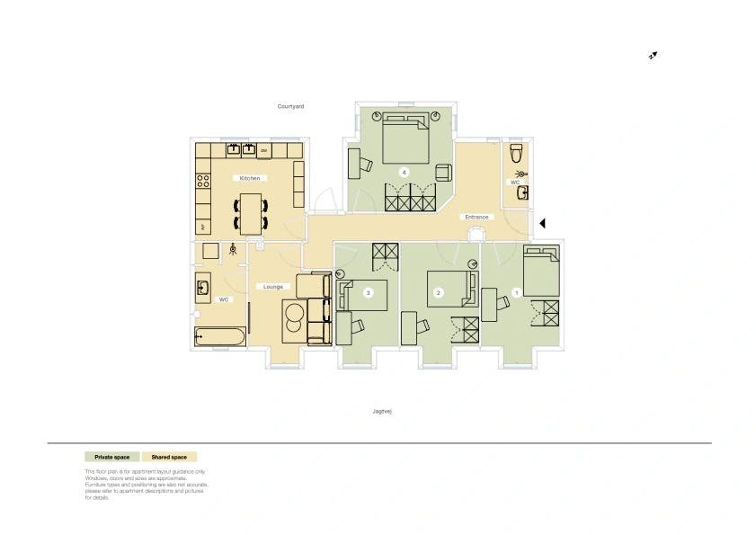
π’π’π’ Enter a vibrant community of young professionals and indulge in serene living within our expansive shared apartment! Discover a beautifully furnished, private room awaiting you in our meticulously serviced co-living space. It's all set for your seamless move-in experience, allowing you to stay as long as you desire. The apartment is bathed in natural light and boasts spaciousness, complemented by exquisite Nordic design throughout. Every corner is meticulously arranged to ensure your comfort and convenience, from the fully equipped kitchen to the in-unit washing and drying machines. Your private sanctuary features a cosy bed adorned with soft duvets, plush pillows, and luxurious bed linen. A well-appointed desk with an ergonomic chair invites productivity, while a generous closet with ample hangers and shelves, clever under-bed storage units, a bedside table, a laundry basket, ambient lamps, vibrant plants, and tasteful decorations enhance the welcoming ambience. Our comprehensive, all-inclusive package includes: β Rent, water, and electricity β High-speed internet connectivity β Elegant designer furniture that complements the space β Regular cleaning services multiple times per week β Shared essentials like toilet paper, soap, and kitchen supplies As a cherished member of our co-living community, you'll gain access to a diverse network of young professionals residing in our apartments across Europe. Join communal events and explore the possibility of temporary room exchanges with fellow members in cities such as Berlin, Munich, Vienna, Paris, London, and beyond. The photos are from a comparable room. π’π’οΏ½...
If you cancel:
