WG-Zimmer in wohnung
Schlafzimmer : 11 m²
Wohnungseigentum: 120 m²
Möbliert
Platz für 1 Person
4 Mitbewohner(innen) (gemischt)
Beschreibung

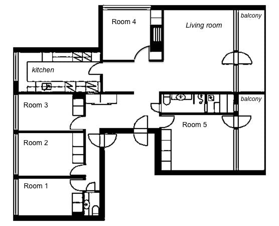
A fully furnished flat for rent in a good neighborhood by the sea in Lehtisaari, Helsinki. Walking distance from the Otaniemi campus of Aalto University. The flat has 5 bedrooms, living room with fireplace, kitchen with high quality appliances (Gaggenau, Bosch etc.), washing machine and dryer, 2 big balconies with sea view, sauna, bathroom/WC, and a separate WC. The bathroom and the separate toilet have recently been fully renovated. This advert is for the Room 4, please see the layout drawing. The room is rented furnished with a 120 cm wide bed, desk, chair and wardrobe. The rooms is available from January 2026. Central heating included in rent. A separate utility charge (45 EUR/month) including water, electricity and high speed internet. Possibility for a parking lot (7 EUR/month) or garage (50 EUR/month). Working or studying people preferred. Perfect for Erasmus or PhD students of Aalto. There is a grocery store and a bus stop just 100m away. Good bus connections to Helsinki city center (15min) and Otaniemi (2min) & Tapiola (10min). Close to Aalto campus and Keilalahti/Keilaniemi offices. A subway station nearby with fast connection to Helsinki city center (8 min). Please contact me for more information. The current tenants are happy to show you around if you're already in town...

Einrichtungen und Ausstattung
  • Badezimmer Unisex
  • Gemeinsames Wohnzimmer
  • Gemeinsamer Garten
  • Gemeinsame Toilette
  • Holzfußboden
  • Zentralheizung
  • Gemeinsames Küchengeschirr
  • WiFi
Entdecke, was in der Nähe istIn der Nähe von Lehtisaari, Helsinki
Listing location
Hausregeln und Präferenzen
  • Alter:keine Vorliebe
  • Geschlecht:keine Vorliebe
  • Art von Mieter:Studenten, Berufstätige
  • Für Paare geeignetNein
  • Haustiere erlaubt:Nein
  • Rauchen erlaubt:Nein
Mieterschutz: Ein reibungsloser Umzug oder dein Geld zurückWenn die Immobilie beim Einzug der Beschreibung des Inserats nicht entspricht, teile uns dies innerhalb von 48 Stunden mit. Dann kannst du eventuell eine Rückerstattung erhalten.
Dein Geld wird sicher verwahrt
Miete bestätigenEinzug48 Stunden später
So wird die Miete berechnet
Monatliche Basis
Die Miete für dieses Inserat wird auf monatlicher Basis berechnet. Du zahlst immer die gesamte Monatsmiete, unabhängig von deinem Einzugs- und Auszugsdatum. Dies ist ein Vertragstyp mit monatlicher Abrechnung.
Stornierungsrichtlinie

Strikte Stornierung

Wenn du stornierst:

  • Innerhalb von 24 Stunden - volle Rückerstattung der ersten Monatsmiete
  • Nach 24 Stunden - keine Rückerstattung

So mietest du diese Unterkunft

Wenn du bereit bist zu mieten, hier erfährst du, was du tun kannst:

  1. Wähle deinen Zeitraum aus, um die Verfügbarkeit zu überprüfen.
  2. Klicke auf <b>"Für Anmietung bewerben"</b>.
  3. Füge die erforderlichen Unterlagen und Zahlungsdetails hinzu, um eine mögliche Zahlung vorab zu genehmigen.
  4. Wenn du bereit bist zu buchen, sende eine Buchungsanfrage.
  5. Wenn der Vermieter deine Mietanfrage akzeptiert, werden wir die Zahlung einziehen, um deinen Aufenthalt zu bestätigen. Wenn dies nicht der Fall ist, wird deine Zahlung automatisch storniert.

Bei HousingAnywhere sind Besichtigungen vor Ort nicht möglich — damit alle die gleiche Chance haben, eine Unterkunft zu mieten, egal wo auf der Welt sie sich befinden. Damit du trotzdem eine fundierte Entscheidung treffen kannst, empfehlen wir:

  1. Dem Vermieter auf HousingAnywhere eine Nachricht senden, um Fragen zu stellen
  2. Weitere Fotos, Videotouren oder Grundrisse anfordern
  3. Erfahre mehr über den Mieterschutz, um zu sehen, wie du abgesichert bist, wenn etwas schiefgeht.

Verwende die Schaltfläche „Nachricht an den Vermieter/die Vermieterin“, um ein sicheres Gespräch auf unserer Plattform zu beginnen. Du kannst Fragen stellen, Bedingungen besprechen und Dokumente sicher austauschen.

Wenn du dein Gespräch auf HousingAnywhere führst, schützt du deine Privatsphäre und hilft dir, Betrug zu vermeiden. Alle deine Nachrichten werden außerdem an einem Ort gespeichert – für einfachen Zugriff und als Aufzeichnung deiner Vereinbarungen.

Sobald deine Anmietung bestätigt ist, teilen wir dir die Kontaktdaten des Vermieters/der Vermieterin mit, damit du deinen Einzug organisieren kannst.

Nachdem du eine Buchung abgeschlossen hast, stehen dir die Kontaktdaten des Vermieters zur Verfügung. Du kannst dich direkt mit dem Vermieter in Verbindung setzen oder weiterhin den HousingAnywhere-Chat nutzen. Alle nachfolgenden Mietkosten kannst du sicher über HousingAnywhere bezahlen.

Der Mieterschutz ist unser Service, der dir dabei hilft, unbesorgt zu mieten. Wir halten alle Zahlungen ein, die du vor dem Einzug über unsere Plattform vornimmst, einschließlich der ersten Monatsmiete und einer Kaution. Nach der Ankunft hast du 48 Stunden Zeit, um zu überprüfen, ob die Unterkunft so ist, wie du erwartet hast. Wir senden dein Geld erst an den Vermieter/die Vermieterin, wenn alles in Ordnung ist.

Schau dir dieses kurze Video an und erfahre, wie wir dich schützen können – von sicheren Zahlungen bis hin zu Unterstützung bei der Suche nach einer neuen Unterkunft. Für weitere Details kannst du auch über Mieterschutz nachlesen.

Ausgezeichneter Vermieter

Einzugsdatum – Auszugsdatum
Noch nicht bereit, eine Anfrage zu senden?Stelle dem Vermieter Fragen, teile Informationen und prüfe, ob ihr zusammenpasst. Hol dir die Antworten, die du brauchst, um sorgenfrei zu mieten.
Abgedeckt durch MieterschutzWir garantieren dir einen stressfreien Einzug oder du erhältst dein Geld zurück.
Schutz vor unerwarteten EreignissenWenn der*die Vermieter*in in letzter Minute storniert oder deinen Einzug verzögert, erhältst du Hilfe bei der Suche nach einer anderen Unterkunft oder einem vorübergehenden Hotelaufenthalt.
Schnelle UnterstützungWenn mit deiner Miete etwas schief geht, können wir helfen, es in Ordnung zu bringen.
Ziehe mit Zuversicht einBei uns ist deine Bezahlung sicher bis zum Einzug. Wenn die Unterkunft nicht der Beschreibung entspricht, erhältst du eine Rückerstattung.
So bist du geschützt