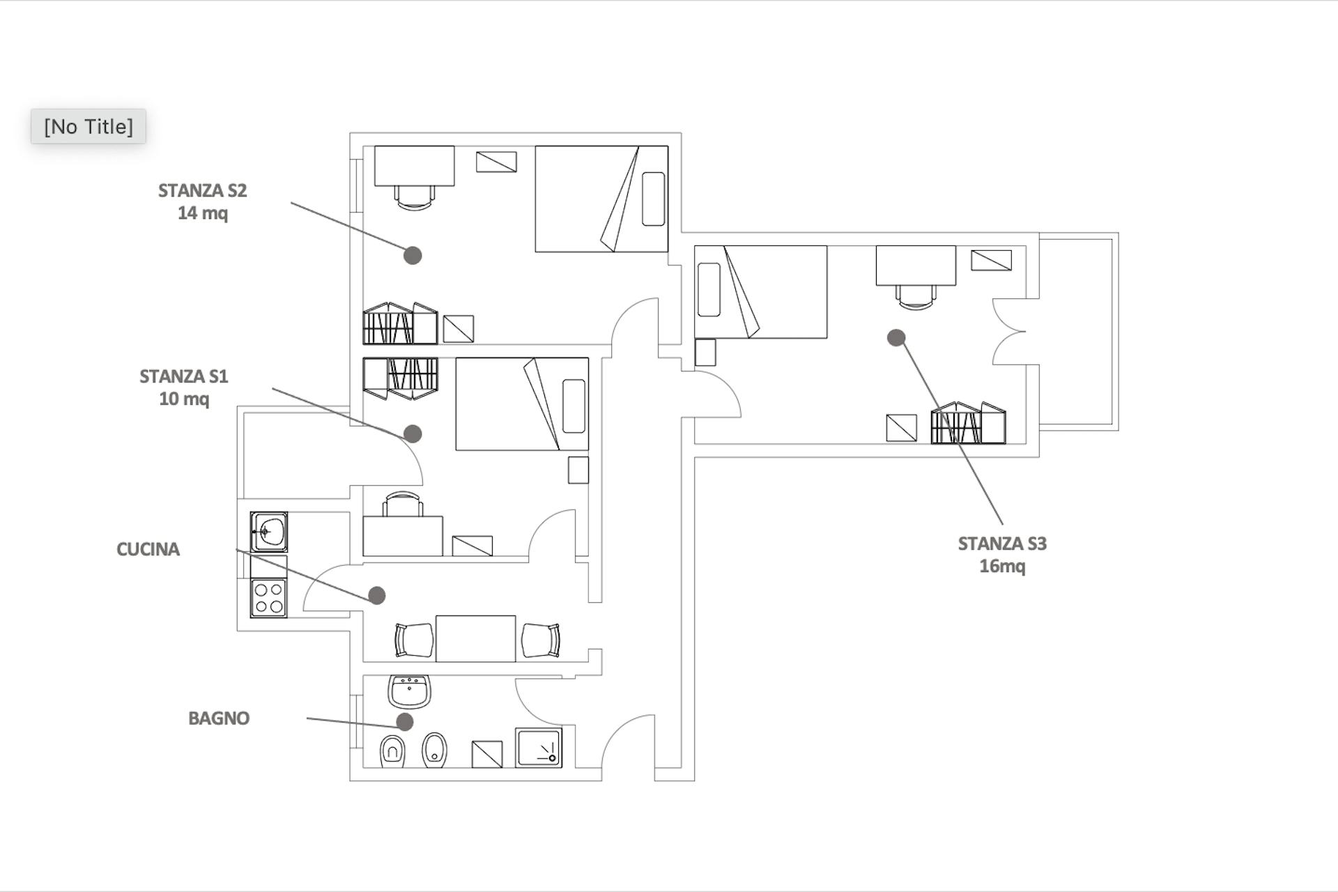
The apartment of viale Sarca 94 is located at the first floor of a residential building. It is a multi-room apartment of around 80 squared meters for university students, interns or young workers. It is composed of a large entrance, 3 private bedrooms with double bed each, a kitchen and 1 bathroom. The apartment has been recently renovated and renewed in the fornitures and equipments. The apartment is located in Viale Sarca, a few hundred meters far from Purple metro station Ca’ Granda (M5). The Bicocca University is about 1 km far from the apartment, so easily reachable by walking, by bike, or by the pubblic transportation. A few meters from the apartment there are the bus stops of lines 86 and 172, and the tram stops of lines 7 and 31, in viale Fulvio Testi. A few meters far from the apartment there is also the CPM institute of Music. The apartment is thus perfect both for university students of Bicocca or CPM, and for young workers, thanks to the easy connection with the city center. Close to viale Sarca there are many services: a few hundred meters far from the apartment there is the Carrefour Market 24h of viale Fulvio Testi, as well as many other stores, bars, restaurants and take aways. In an apartment located in viale Sarca 94, this private room is reserved for university students, interns or young workers. Fully furnished, it is equipped with single bed, bedside table with lamp, wardrobe, bookcase, desk and chair. This bedroom has a balcony. Kitchen and bathroom are shared with the other tenants of the apartment. Includes utilities: building expenses, heating, water, electricity, internet, garbage tax, periodical cleaning services of common areas; utilities adjustments excluded. RENTAL CONDITIONS: -BI-WEEKLY CONTRACT: If you move in during the 2nd half of the month, you will only pay half-a-month’s rent for that month. If you move out during the 1st half of the month, you will only pay half-a-month’s rent for that month. I always rent from the first day the room is available. - ALL - INCLUSIVE Monthly rent: water, gas, electricity, wi-fi, condominium fee all included! - DEPOSIT that it will be given back to you at the end of your stay. - CONTRACT REGISTRATION (one time fee): depending on the room you are interested in. Please check the field OTHER to see this fee. - ONE TIME ADMIN FEE: We are a professional property management company and for this reason we also include initial and final cleaning of the room; cleaning of common area of the flat every two weeks; 2 bed-linen; contract activation and termination: professional assistance service and property maintenance during your stay: we will take care of everything! Do you want to finish your contract earlier than agreed? Don’t worry, please inform us and if you find a substitute (of course we can also help you!), you can leave without any type of penalties. Please be aware that HousingAnywhere is an online booking platform. Therefore exchanging contact details and offering viewings is not possible. If you would like to reserve this accommodation, send me a booking request or a message and please mention your age and occupation....
Wenn du stornierst:

Wir garantieren dir einen stressfreien Einzug oder du erhältst dein Geld zurück.
Wenn der*die Vermieter*in in letzter Minute storniert oder deinen Einzug verzögert, erhältst du Hilfe bei der Suche nach einer anderen Unterkunft oder einem vorübergehenden Hotelaufenthalt.
Wenn mit deiner Miete etwas schief geht, können wir helfen, es in Ordnung zu bringen.
Bei uns ist deine Bezahlung sicher bis zum Einzug. Wenn die Unterkunft nicht der Beschreibung entspricht, erhältst du eine Rückerstattung.