Calle Párroco Antonio González Abato
2Mieter haben diesen Ort erfolgreich ihr Zuhause genannt
WG-Zimmer in wohnung
Schlafzimmer : 10 m²
Wohnungseigentum: 108 m²
Möbliert
Platz für 1 Person
3 Mitbewohner(innen) (gemischt)
Flexible Stornierung
Boden: 3
Beschreibung

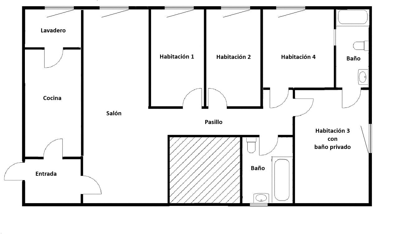
Room with air conditioning❄. 🏠Included in the Price*💵: 🧹2 weekly cleanings of common areas. 🛜 Wi-Fi. 🛠 Maintenance. (If you have any problem in the house or incident during your stay, we are there to solve it) 🛡 Civil liability insurance. (Protect against damages they may cause to the property, neighbourhood, and block of the property, as well as third parties.) 🔔 24/7 attention through our flat manager so you can dedicate yourself to studying and enjoying your stay. *The higher price corresponds to the months of September to June and the lower price to the summer months of July and August. In case of making a reservation in July or August for more than two months, only those that cover until June will be accepted. Premium hosting service. 🏡Apartment Overview Magnificent four-bedroom flat, refurbished and furnished. The furniture and fittings are brand new. The bedrooms are spacious and bright. Each room has air conditioning and heating. Bedroom three has a private bathroom. It is located in a quiet area and within a fantastic community with a dedicated concierge. It is halfway between the Viapol Campus and the Reina Mercedes Campus. Very close to the Virgen del Rocío Hospital commuter train station and opposite a large park where you can unwind after a day of studying. 🛏️Your Private Room The room has a bed, air conditioning, desk and chair, closet and bedside table. 🌆Prime Location on Calle Parroco Antonio Gonzales Abato 10. The property is located in the Tiro de Línea neighborhood, which is a well-maintained and quiet community. It is halfway between the Viapol Campus and the Reina Mercedes Campus. It is very close to the Virgen del Rocío Hospital commuter train station. 🚏Distance from the main Campus/Universities: Hospital Virgen del Rocío 12 min walk. Campus Reina Mercedes 18 min walk. Campus Nervión/Viapol de la Universidad de Sevilla 11 min by bus and 22 min walk. Rectorado de la Universidad de Sevilla 23 min by bus and 36 min walk. Centro de la ciudad/Catedral 31 min by bus and 48 min walk. Universidad Loyola 44 min by bus. Universidad Pablo de Olavide 49 min by bus. 📋 Policies and Additional Information: 🔴IMPORTANT🔴: It is necessary after booking by Housing to complete the following steps in order to complete your booking 100%: 1 Complete the google form that will be sent to you by the owner. 2 Sign the rental contract that will be sent to you by the landlord filled in with the data you provided in the form you filled in previously. 3 Pay by bank transfer the amounts described in the rental contract. Normally these are: deposit + admin fee + surcharge (if any). 💰Other cost: Admin Fee 150€. To be paid by bank transfer on signing the rental contract. Deposit: 1 month. To be paid by bank transfer on signing the rental contract. Utility costs or bills: 35€ per month Check out cleaning fee of room 35€ (mandatory). We will charge it at check-out, subtracting it from the deposit. Please note that there is a 💶surcharge💶** for bookings less than or equal to 6 months: Stays from 4 to 6 months: +7.5% extra cost. Must be paid at the time of signing the contract. Stays from 1* to 3 months: +10%extra cost. Must be paid at the time of signing the contract. *Only stays of 1 or 2 months are allowed in the summer months (July and August) and on special occasions. **There is no surcharge for short stays during the summer months. 🛎️Check ins - weekdays from 9am to 5pm. Out of opening hours, with a limit until 22:00 hours, at an additional cost to be paid by the tenant: Monday to Thursday: 20€. Friday to Sunday: 30€. OPTIONAL SERVICES: 🛌🏻Bed linen (loan): 49€. (one-off payment) We will charge it at check-out, subtracting it from the deposit. Includes: cotton sheets and pillowcase, duvet and bedspread. Final cleaning included. 🛁Towels (loan): 25€. (one-off payment) We will charge it at check-out, subtracting it from the deposit. Including: bath towel, hand towel and toilet towel. towel. Final wash included. 🧹Cleaning of the bedroom: Weekly: 40€/month Fortnightly: 22€/month Monthly: 13€/month Extraordinary one-time cleaning: 25€ (one-time payment...

Einrichtungen und Ausstattung
  • Badezimmer Unisex
  • Gemeinsames Wohnzimmer
  • Gemeinsame Toilette
  • Gemeinsame Küche
  • Steinfußboden
  • Elektrische Heizung
  • Gemeinsames Küchengeschirr
  • WiFi
Entdecke, was in der Nähe istIn der Nähe von Polígono Sur, Sevilla
Listing location
Hausregeln und Präferenzen
  • Alter:keine Vorliebe
  • Geschlecht:keine Vorliebe
  • Art von Mieter:Studenten, Berufstätige
  • Für Paare geeignetNein
  • Musikinstrumente spielen erlaubt:Verhandelbar
  • Haustiere erlaubt:Nein
  • Rauchen erlaubt:Nein
Mieterschutz: Ein reibungsloser Umzug oder dein Geld zurückWenn die Immobilie beim Einzug der Beschreibung des Inserats nicht entspricht, teile uns dies innerhalb von 48 Stunden mit. Dann kannst du eventuell eine Rückerstattung erhalten.
Dein Geld wird sicher verwahrt
Miete bestätigenEinzug48 Stunden später
So wird die Miete berechnet
Halbmonatlich
Die Miete dieses Inserats wird auf halbmonatlicher Basis berechnet. Für den ersten und letzten Monat zahlst du die Hälfte der Monatsmiete, wenn du einen halben Monat oder weniger bleibst. Wenn du mehr als einen halben Monat bleibst, zahlst du die gesamte Monatsmiete. Wir nennen dies einen Vertrag auf halbmonatliche Basis. Um dein Mietverhältnis zu bestätigen, musst du die gesamte Monatsmiete bezahlen. Jede zusätzliche Miete, die du für den ersten Monat zahlst, wird von der Miete des nächsten Monats abgezogen.
Stornierungsrichtlinie

Flexible Stornierung

Wenn du innerhalb von 24 Stunden nach der Bestätigung stornierst, erhältst du eine vollständige Rückerstattung der ersten Monatsmiete.

Wenn du diese Unterkunft buchst und sie stornierst:

  • Mehr als 30 Tage vor dem Einzugstermin - volle Rückerstattung der ersten Monatsmiete
  • 30 bis 7 Tage vor dem Einzugstermin - 50% Rückerstattung der ersten Monatsmiete
  • Weniger als 7 Tage vom Einzugsdatum - keine Rückerstattung
Registrierungsnummer für die Vermietung
ESHFNT00004102600058944100200000000000000000000000000
Diese Nummer bestätigt, dass die Unterkunft bei den lokalen Behörden als Mietobjekt registriert wurde.

So mietest du diese Unterkunft

Ausgezeichneter Vermieter

Einzugsdatum – Auszugsdatum
Noch nicht bereit, eine Anfrage zu senden?Stelle dem Vermieter Fragen, teile Informationen und prüfe, ob ihr zusammenpasst. Hol dir die Antworten, die du brauchst, um sorgenfrei zu mieten.
Abgedeckt durch MieterschutzWir garantieren dir einen stressfreien Einzug oder du erhältst dein Geld zurück.
Schutz vor unerwarteten EreignissenWenn der*die Vermieter*in in letzter Minute storniert oder deinen Einzug verzögert, erhältst du Hilfe bei der Suche nach einer anderen Unterkunft oder einem vorübergehenden Hotelaufenthalt.
Schnelle UnterstützungWenn mit deiner Miete etwas schief geht, können wir helfen, es in Ordnung zu bringen.
Ziehe mit Zuversicht einBei uns ist deine Bezahlung sicher bis zum Einzug. Wenn die Unterkunft nicht der Beschreibung entspricht, erhältst du eine Rückerstattung.
So bist du geschützt