Erdbergstraße
Apartamento completo
Alojamiento: 31 m²
Amueblado
Espacio para 2 personas
Estudio
Descripción

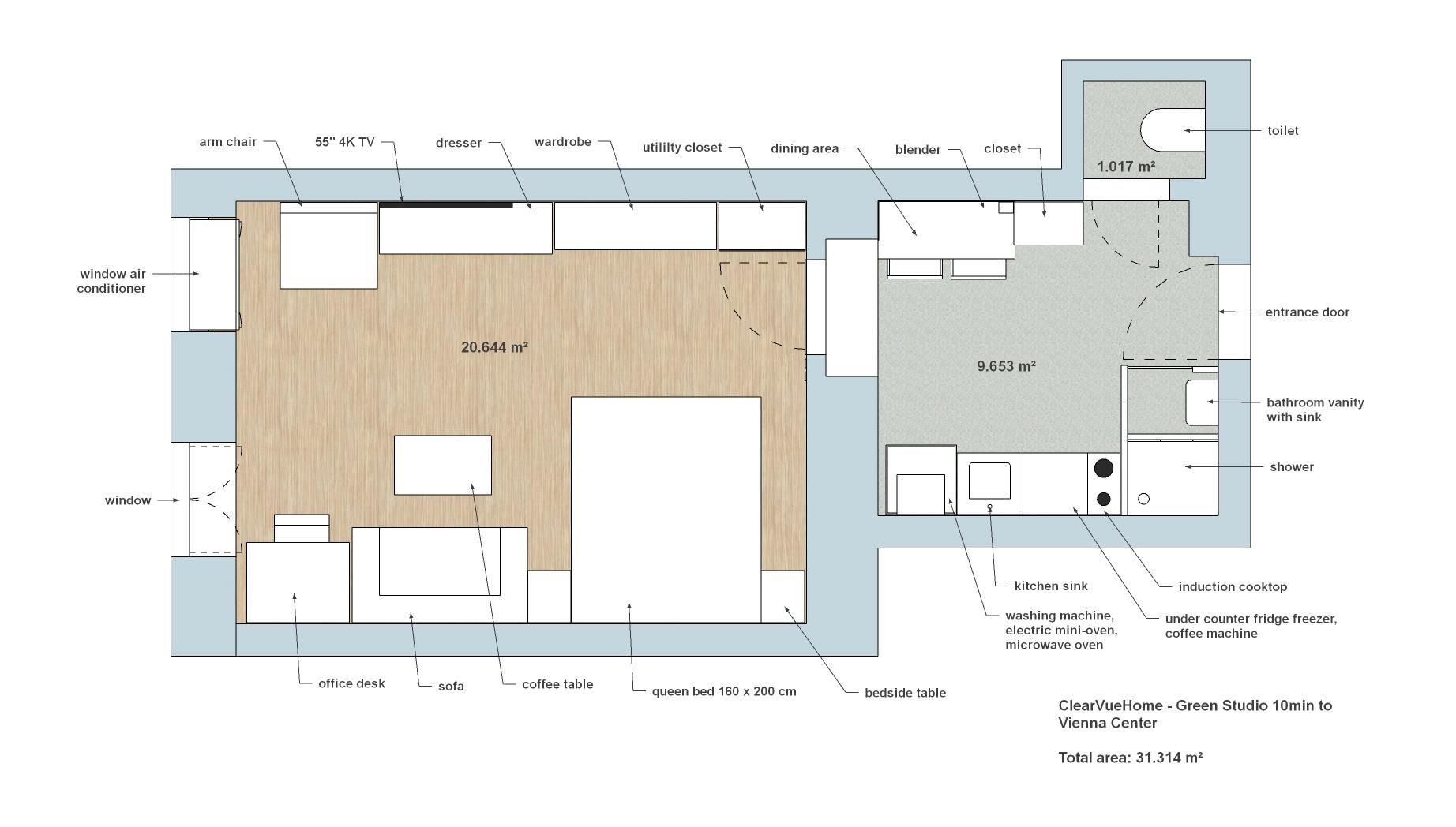
Non-smoking, green studio apartment with air-conditioning, located just 5 minutes (200m) from subway station "Kardinal-Nagl-Platz" (U3), with a direct connection to "Wien Mitte" and "St. Stephens Cathedral". The apartment has an area of 31 square meters, is newly renovated and fully furnished including a new air-conditioning unit, a 55" 4K TV, and unlimited 5G WiFi. It has a new queen bed and a two-seater sofa. Paid garage parking is located right in front of the building (prices from 6€/day). The apartment is fully furnished including a new window air-conditioning unit, a 55" 4K TV with many channels and high speed 5G WiFi. The apartment has a new queen bed (mattress size is 160x200cm), a two-seater sofa, and an office table. The kitchen includes a small dining table with chairs, a Ninja Foodi mini-oven, an electric stove, a microwave, a blender, a Nespresso machine, a French Press coffee maker, dishes, cutlery and further standard kitchen amenities. The apartment also includes a combined smoke and carbon monoxide detector. Once the reservation request (pending reservation) is confirmed by us, guests will be required to fill out and submit an online guest registration form (required by law), sign the rental contract online and make the payments within the time frames specified in our terms and conditions and rental contract. A video tour of the apartment is available online. All utilities are included in the price. You can register at this address (Anmeldung). Invoice can also be provided...

Instalaciones y servicios extra
  • Salón privado
  • WC privado
  • Cocina privada
  • Baño privado
  • Suelo laminado
  • Calefacción de gas
  • Utensilios de cocina privados
  • WiFi
Descubre lo que está cercaCerca Landstraße, Viena
Listing location
Reglas y preferencias de la casa
  • Edad:Sin preferencias
  • Género:Sin preferencias
  • Tipo de inquilino:Estudiantes, trabajadores
  • Adecuado para parejas:Si
  • Tocar Instrumentos Musicales está permitido:Negociable
  • Mascotas permitidas:No
  • Fumar está permitido:No
Protección del inquilino: Múdate sin problemas o te devolvemos el dinero.Cuando te mudes, si la propiedad no coincide con la descripción del anuncio, avísanos en un plazo de 48 horas y podrás obtener un reembolso.
Tu dinero se mantiene seguro
Confirmar alquilerMudarse48 horas después
Cómo se calcula el alquiler
Mensualmente
El alquiler de este anuncio se calcula mensualmente. Siempre pagarás el alquiler del mes completo, independientemente de las fechas de entrada y de salida. A esto lo llamamos un tipo de contrato mensual.
Política de cancelación

Cancelación estricta

Si cancelas:

  • Durante las primeras 24 horas tras la confirmación - Reembolso total del primer mes de alquiler
  • 24 horas después de la confirmación de la reserva - Sin posibilidad de reembolso

Cómo alquilar este alojamiento

Si tienes todo listo para alquilar, esto es lo que tienes que hacer:

  1. Selecciona tus fechas para comprobar la disponibilidad.
  2. Haz clic en <b>Solicitar para alquilar</b>.
  3. Añade tus documentos acreditativos y los detalles de pago para preautorizar un posible pago.
  4. Cuando estés listo para reservar, envía una solicitud de reserva.
  5. Si el propietario acepta tu solicitud de alquiler, cobraremos el pago para confirmar tu estancia. Si no la acepta, tu pago se cancelará automáticamente.

En HousingAnywhere no se admiten visitas en persona, para que todas las personas tengan las mismas posibilidades de alquilar, independientemente de en qué parte del mundo se encuentren. Para ayudarte a tomar una decisión informada, te recomendamos:

  1. Enviar mensajes al propietario de HousingAnywhere para que le hagas preguntas.
  2. Solicitar más fotos, visitas guiadas en vídeo o los planos de planta.
  3. Lee sobre la Protección del inquilino para saber cuál es tu cobertura si surge algún problema.

Utiliza el botón "Enviar mensaje propietario" para empezar a tener una conversación segura en nuestra plataforma. Puedes hacer preguntas, discutir las condiciones e intercambiar documentos de forma segura.

Si solo conversas a través HousingAnywhere, protegerás tu privacidad y evitarás estafas. Además, todos tus mensajes estarán guardados en un solo lugar para que puedas acceder a ellos fácilmente, y también sirve de registro sobre lo acordado.

Cuando se confirme tu alquiler, te enviaremos los datos de contacto del propietario para que puedas organizar tu mudanza.

Cuando hagas una reserva, te facilitaremos los datos de contacto del propietario. Podrás ponerte en contacto directamente con el propietario o seguir empleando el chat de HousingAnywhere. Todos los gastos posteriores del alquiler se pueden pagar de forma segura a través de HousingAnywhere.

Protección del inquilino es el servicio que proporcionamos para que alquiles con tranquilidad. Retenemos todos los pagos que realices a través de nuestra plataforma antes de la mudanza, incluso el alquiler del primer mes y los depósitos. Cuando llegas al alojamiento, tienes 48 horas para comprobar que es como esperabas. Solo enviaremos tu dinero al propietario si todo está bien.

Asiste este breve vídeo para conocer todas las formas en que te protegemos, desde pagos seguros hasta ayuda para encontrar un nuevo alojamiento. Para obtener más información, también puedes leer sobre Protección del inquilino.


Entrada – Salida
¿No estás listo para solicitar este alquiler?Haz preguntas al propietario, comparte información y comprueba si es lo que estás buscando. Obtén las respuestas que necesitas para alquilar con tranquilidad.
Cubierto por la Protección del inquilinoTe garantizamos una mudanza sin estrés o te devolvemos tu dinero.
Protección frente a lo inesperadoSi el anunciante cancela a última hora o retrasa tu mudanza, obtendrás ayuda para encontrar otro alojamiento o una estancia temporal en un hotel.
Asistencia rápidaSi algo sale mal con tu alquiler, podemos ayudarte a solucionarlo.
Mudarse con confianzaMantenemos tu pago seguro hasta que te mudes. Si el alojamiento no coincide con la descripción, recibirás un reembolso.
De qué manera estás protegido