Hegyfok utca
€2450
高达 5% 的折扣
整套房屋
房产: 126 m²
配备了家具
5 人空间
3 卧室
描述

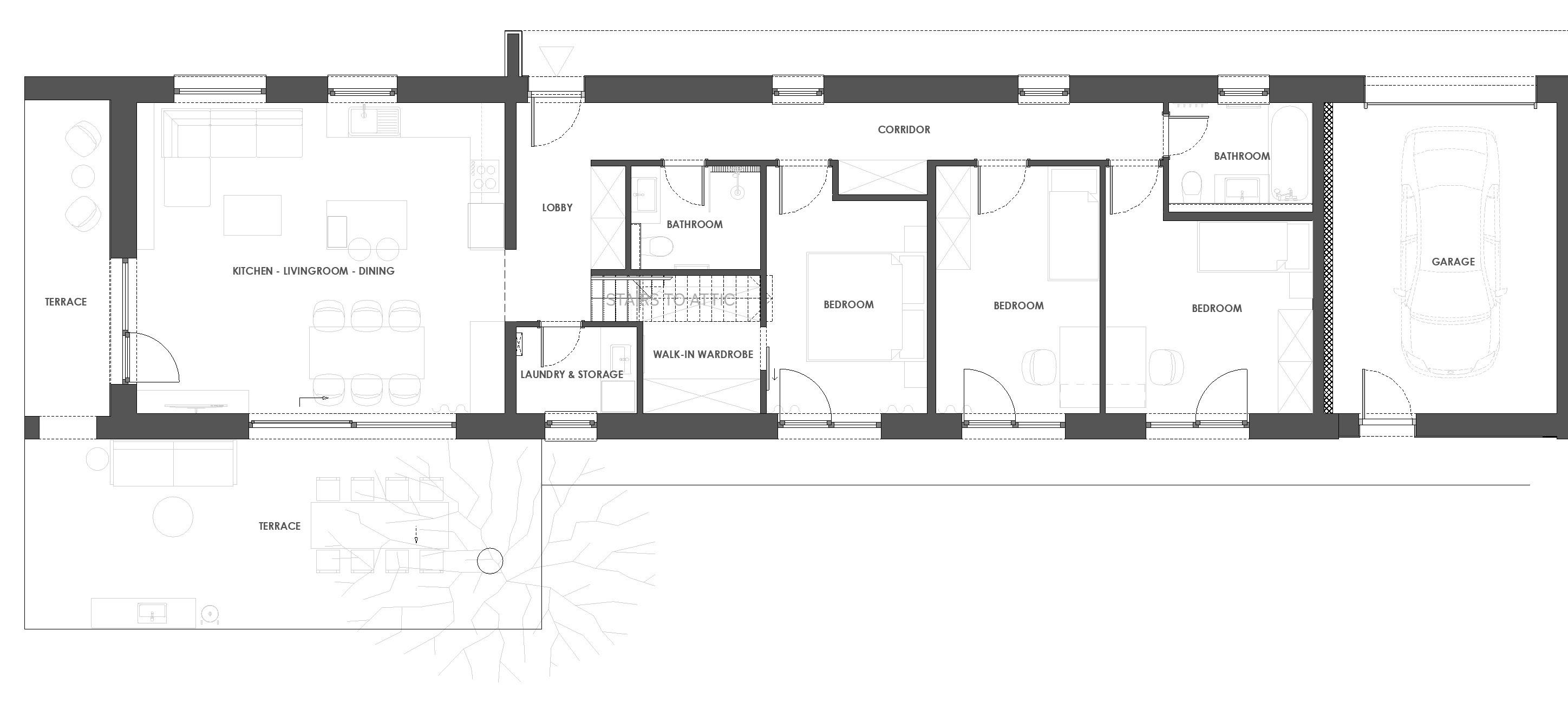
Located in one of the most sought-after suburban areas of Budafok, this exceptional single-storey family home offers a peaceful, green environment and a harmonious blend of design and function. Designed by an interior architect and a landscape engineer, the house reflects thoughtful planning both indoors and out. The total area, including the garage, is 126 m2. The Perfect Home – Functional and Livable Layout Single-storey layout with three bedrooms and two bathrooms (one with a shower, the other with a bathtub) Master bedroom with private walk-in wardrobe Spacious, sunlit open-plan living room with kitchen and dining area, featuring high ceilings and direct garden access Utility room equipped with a washer-dryer Large terrace shaded by a mature walnut tree – a truly unique and peaceful outdoor extension of the home Modern Technology – A Comfortable and Energy-Efficient Home Heat pump-based underfloor heating and ceiling cooling Heat recovery ventilation system for continuous fresh air Motorized external blinds with a smart home system controlling lighting and shading Fully equipped premium kitchen featuring a side-by-side fridge, induction cooktop, wine cooler, built-in microwave and oven, automatic extractor hood, and dishwasher Well-Maintained Garden – Outdoor Living at Its Best Robot lawn mower and automatic irrigation system for low-maintenance gardening Child-friendly play area with a slide, swing, and sandbox Terrace with a Kamado BBQ and a summer kitchen including a gas stove and sink – perfect for outdoor cooking and entertaining Excellent Location with Diverse Local Amenities This home is ideal for families and couples seeking a calm and safe environment with easy access to city life. Located in a peaceful and well-connected neighborhood, it offers excellent transport links and proximity to schools, shops, and services. The nearby Danube riverbank provides a wide range of outdoor activities including walking, cycling, and water sports. In addition, the area boasts a selection of quality bistros, restaurants, bakeries, and cafés, all within easy reach. Parking and Storage: Enclosed garage for one car, plus an additional private parking space in the yard This one-of-a-kind home is perfect for families or couples looking to enjoy the comfort of modern living in a green, friendly, and thoughtfully designed environment – with no compromises....

设施和便利设施
  • 私人停车位
  • 私人客厅
  • 专属花园
  • 私人卫生间
  • 地板未知
  • 集中供暖
  • 专属厨具
  • WiFi
探索周边环境附近XXII. kerület, 布达佩斯
Listing location
规则和偏好
  • 年龄:无偏好
  • 性别:无偏好
  • 租户类型:仅限职场人士
  • 适合情侣:
  • 允许演奏乐器:
  • 可携带宠物:可协商
  • 允许吸烟:仅限外部
在您入住后 48 小时内,您的资金都是安全的如果您入住并发现该房产与其房源描述不符,请在 48 小时内告知我们,您可获得全额退款。
您的资金是安全的
预订已确认入住日入住后 48 小时
租金如何计算
按月计算
无论何时入住或退房,您始终支付整月的租金。
取消政策

严格取消

如果您取消:

  • 确认后 24 小时内 – 全额退还首月的租金
  • 24 小时确认后 – 无退款

如何租下这个房源

当您找到您喜欢的房源时,预订相当简单。 租户和房东都需要确认才能完成预订。 以下是其运行方式:

  1. 选择日期以查看是否可预订。
  2. 点击联系方式按钮,联系房东。
  3. 向房东介绍自己。 提出您可能有的任何问题。
  4. 当您准备好预订时,请发送预订请求。
  5. 当房东批准且付款完成时,您已成功预订房源。

HousingAnywhere 上的房源不需要看房,原因如下:

  1. HousingAnywhere 上的所有房源都有图片和清晰描述。 如有任何不清楚的情况,那么您可以轻松联系房东。
  2. 限制看房为每个人提供平等机会,无论您是本地人还是居住在国外。
  3. HousingAnywhere 确保房源与广告内容一致,在您成功入住后才会向房东转账。

使用“向房东发送消息”按钮,在我们的平台上开启安全对话。您可以提出问题、讨论条款,并安全地交换文件。

将您的对话保留在 HousingAnywhere 上,可保护您的隐私,并帮助您避免诈骗。您的所有消息也会保存在一个地方,以便于访问,并作为您的协议记录。

一旦您的租房确认,我们会分享房东的联系信息,以便您安排入住事宜。

在您预订后,房东的联系方式将与您共享。 您可以直接与房东联系,或者继续使用 HousingAnywhere 聊天。 所有后续租赁费用均可通过 HousingAnywhere 安全支付。

租户保障是我们的一项服务,旨在帮助您安心租房。您在入住前通过我们平台支付的所有款项,包括首月租金和任何押金,都会被我们保管。在您抵达后,您有 48 小时内检查房源是否符合您的预期。只有在一切顺利时,我们才会将您的款项汇给房东。

观看此短视频,了解我们为保障您的安全,从安全付款到为寻找新房源提供支持。有关更多详情,您还可以阅读租户保障


高达 5% 的折扣
入住日期 – 退房日期
还没准备好申请?向房东提问、分享信息,并确定是否合适。获取您所需的答案,安心租房。
受租户保护的保障确保您顺利、愉快地入住,否则退款。
防范意外如果房东在最后一刻取消或推迟您入住,我们将帮助您寻找其他住处或临时酒店住宿。
快速支持如果您的租赁出现问题,我们可以帮助您解决问题。
安心入住在您入住之前,我们会保证您的付款安全。如果该地点与描述不符,您将获得退款。
您会获得哪些保障