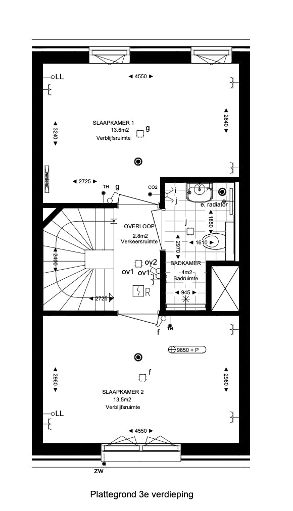
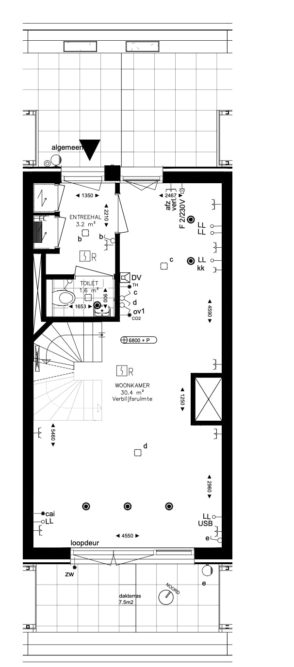
The entrance to a three-storey Parkwoning is located on the living gallery on the second floor (accessible via the adjacent apartment blocks 06 and 10) and overlooks the lush green courtyard garden of KOER. Here you enter on the first living floor, where your cozy living room with kitchen of over 30 m2 is located. At the front is your spacious terrace, located southeast, where you can enjoy the beautiful view of the Karakterpark. On the second living floor you will find two spacious bedrooms and a fully equipped bathroom. On the third living floor you will find two more spacious bedrooms and a technical room for the installations. Enough space for a large family and/or home workers! The Parkwoningen consist of three floors (upper house), with a gallery and a private terrace. What all Parkwoningen share - in addition to their spacious living space - is the beautiful view of the Karakterpark (at the front) and the courtyard garden (at the rear). The added photos are an impression. The house is currently being made habitable. This is a new-build home. The photos that have been added are impression photos. Work is currently being carried out in the home because it has just been completed. Living area 120 m2; - 2 floors, with 4 bedrooms; - View of the Karakterpark (front) and the courtyard (back); - Gallery and terrace (upper homes); - Very energy-efficient (A+++, underfloor heating, gas-free); INNER GARDEN The communal courtyard in KOER is over 3500 m2 and borders the private gardens. A real play paradise for children and can also be closed off! In addition to the large communal courtyard, almost every home has its own outdoor space in the form of a private garden or a terrace. And are already equipped with a beautiful sustainable boundary with a real pergola and beautiful planters with seating edges. OMGEVEINGKOER is located in the middle of the Rotterdam district of Feijenoord. Easily accessible by public transport and within 15 minutes you are on the highway. Fancy a nice meal out? The trendy Katendrecht district is less than a 5-minute bike ride away. Cycle another 5 minutes and you will be on the Coolsingel. PARKING Parking in KOER is solved with the city garage on the other side. Cyclists enter the garage via the mobility hub in the public plinth on the Laan op Zuid, the entrance on the Katadreuffestraat or the entrance on the Stroomkoningstraat. Residents have access to private and shared bicycle parking spaces and various types of shared mobility via a gentle ramp. Although this information has been compiled by us with the necessary care, it is only indicative. All stated dimensions and surfaces are indicative. No rights or obligations can be derived from this registration, no liability is accepted on our part for any incompleteness, inaccuracy or otherwise, or the consequences thereof FINISHING The house is delivered furnished. Floor: PVC floor Curtains: Linen Walls: Non-woven wallpaper in the colour skimming stone (Farrow & Ball) Kitchen L-shaped (floor plan available...
如果您取消:
当您找到您喜欢的房源时,预订相当简单。 租户和房东都需要确认才能完成预订。 以下是其运行方式:
HousingAnywhere 上的房源不需要看房,原因如下:
使用“向房东发送消息”按钮,在我们的平台上开启安全对话。您可以提出问题、讨论条款,并安全地交换文件。
将您的对话保留在 HousingAnywhere 上,可保护您的隐私,并帮助您避免诈骗。您的所有消息也会保存在一个地方,以便于访问,并作为您的协议记录。
一旦您的租房确认,我们会分享房东的联系信息,以便您安排入住事宜。
租户保障是我们的一项服务,旨在帮助您安心租房。您在入住前通过我们平台支付的所有款项,包括首月租金和任何押金,都会被我们保管。在您抵达后,您有 48 小时内检查房源是否符合您的预期。只有在一切顺利时,我们才会将您的款项汇给房东。
观看此短视频,了解我们为保障您的安全,从安全付款到为寻找新房源提供支持。有关更多详情,您还可以阅读租户保障。
