Via Michelangelo Buonarroti
私人房间 中的 公寓 个
卧室: 15 m²
房产: 120 m²
配备了家具
1 人空间
5 室友 (混合)
描述

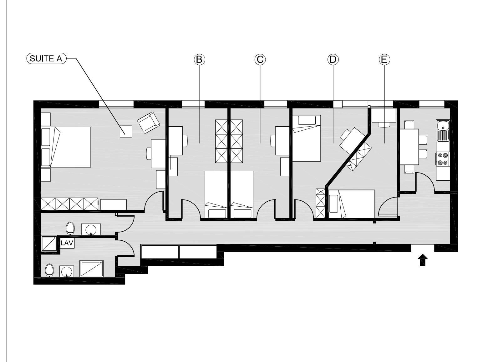
Suite A Here are some details about the BRAND NEW apartment at the beginning of Via Buonarroti, n. 109, on the fourth floor. The apartment is located in a residential neighborhood, on a quiet street. Just a few steps from the apartment, there is a hidden pharmacy and Alfio Famiglia Nalati, a delightful pastry shop. The area is well-served, with bars, pubs, pizzerias, and supermarkets nearby. Right below the apartment, there is a lively square where you can enjoy a pizza or an aperitif with friends in the evening. The new APP 139 is part of a complex of apartments and includes: an extensive shared kitchen equipped with everything, 5 spacious single rooms, one of which is a very bright double room. You will also find a beautiful kitchen as a common area where you can spend time with friends and housemates, study, or simply relax in good company. The area is very convenient for public transport: the bus stop is 1 minute away on foot from the apartment. The tram stop is also easy to reach, just 10 minutes away. Amenities included: 🔶 All utilities: electricity, water, gas, heating, garbage 🔶 All condominium expenses 🔶 Unlimited Wi-Fi Internet 🔶 Maintenance assistance service 🔶 An Apartment Manager always available for any needs You also have an apartment group for any necessity, emergency, or to communicate with your reference Apartment Manager. We or our technicians will intervene, and you won’t have to worry about anything. Photos of the apartment are currently unavailable as it is still under renovation. However, you can see the style of our other apartments. Once your booking is confirmed, you will receive the rental contract. To finalize your reservation, you must: ✔ Pay 2 months’ deposit within 48 hours of receiving the contract ✔ Pay the administration fee within 48 hours of receiving the contract ✔ Submit all required documents for the contract registration ⚠️ If you do not provide the required payments and documents within 7 days of booking, your reservation will be automatically cancelled. 🔔 Please note: Rent payments are made bimonthly or quarterly...

设施和便利设施
  • 无性别卫生间
  • 共用客厅
  • 共用卫生间
  • 共用厨房

  • 共用厨具
  • WiFi
  • 卧室锁
探索周边环境附近Via Michelangelo Buonarroti, 帕多瓦
Listing location
规则和偏好
  • 年龄:19 - 30
  • 性别:无偏好
  • 租户类型:学生、职场人士
  • 适合情侣:

  • 可携带宠物:没有
  • 允许吸烟:没有
在您入住后 48 小时内,您的资金都是安全的如果您入住并发现该房产与其房源描述不符,请在 48 小时内告知我们,您可获得全额退款。
您的资金是安全的
预订已确认入住日入住后 48 小时
租金如何计算
每半月一次
如果您每月入住少于 2。周,您仅需支付该月租金的一半。
取消政策

严格取消

如果您取消:

  • 确认后 24 小时内 – 全额退还首月的租金
  • 24 小时确认后 – 无退款

如何租下这个房源

当您找到您喜欢的房源时,预订相当简单。 租户和房东都需要确认才能完成预订。 以下是其运行方式:

  1. 选择日期以查看是否可预订。
  2. 点击联系方式按钮,联系房东。
  3. 向房东介绍自己。 提出您可能有的任何问题。
  4. 当您准备好预订时,请发送预订请求。
  5. 当房东批准且付款完成时,您已成功预订房源。

HousingAnywhere 上的房源不需要看房,原因如下:

  1. HousingAnywhere 上的所有房源都有图片和清晰描述。 如有任何不清楚的情况,那么您可以轻松联系房东。
  2. 限制看房为每个人提供平等机会,无论您是本地人还是居住在国外。
  3. HousingAnywhere 确保房源与广告内容一致,在您成功入住后才会向房东转账。

使用“向房东发送消息”按钮,在我们的平台上开启安全对话。您可以提出问题、讨论条款,并安全地交换文件。

将您的对话保留在 HousingAnywhere 上,可保护您的隐私,并帮助您避免诈骗。您的所有消息也会保存在一个地方,以便于访问,并作为您的协议记录。

一旦您的租房确认,我们会分享房东的联系信息,以便您安排入住事宜。

在您预订后,房东的联系方式将与您共享。 您可以直接与房东联系,或者继续使用 HousingAnywhere 聊天。 所有后续租赁费用均可通过 HousingAnywhere 安全支付。

租户保障是我们的一项服务,旨在帮助您安心租房。您在入住前通过我们平台支付的所有款项,包括首月租金和任何押金,都会被我们保管。在您抵达后,您有 48 小时内检查房源是否符合您的预期。只有在一切顺利时,我们才会将您的款项汇给房东。

观看此短视频,了解我们为保障您的安全,从安全付款到为寻找新房源提供支持。有关更多详情,您还可以阅读租户保障

优秀房东

还没准备好申请?向房东提问、分享信息,并确定是否合适。获取您所需的答案,安心租房。
受租户保护的保障确保您顺利、愉快地入住,否则退款。
防范意外如果房东在最后一刻取消或推迟您入住,我们将帮助您寻找其他住处或临时酒店住宿。
快速支持如果您的租赁出现问题,我们可以帮助您解决问题。
安心入住在您入住之前,我们会保证您的付款安全。如果该地点与描述不符,您将获得退款。
您会获得哪些保障