Приватна кімната у квартира
кімната: 10 m²
Об’єкт нерухомості: 33 m²
Мебльовані
Простір для стількох людей: 2
Без сусідів
Гнучке скасування
Опис

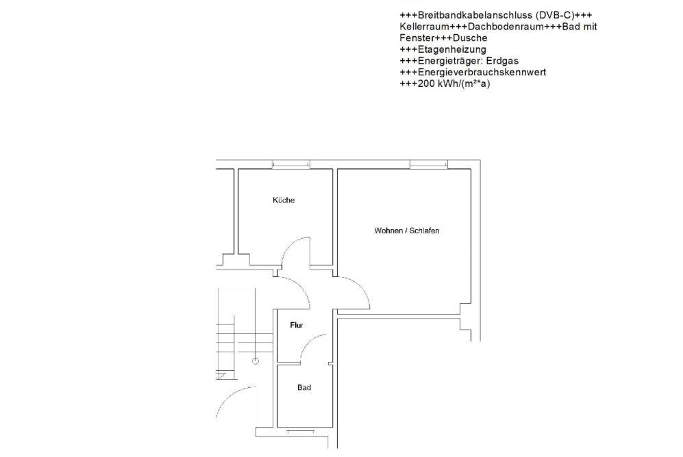
Die Wohnungsbeschreibung: Herzlich willkommen in Ihrer neuen (temporären) Heimat in Braunschweig-Lehndorf! Ich biete meine hellhörige, komplett eingerichtete und sehr gemütliche 1-Zimmerwohnung in der beliebten und ruhigen Saarstraße zur Untermiete an. Sie ist der perfekte Ort für alle, die ein fertiges Zuhause suchen, in das man nur noch mit dem Koffer einziehen muss. Das erwartet Sie: Hell und freundlich: Die Wohnung wird sowohl im Schlaf-/Wohnzimmer als auch in der Küche von einem großen Fenster mit einem schönen Ausblick erhellt und wirkt sofort einladend. Komplett möbliert & ausgestattet: Alles ist bereits da! Sie finden eine voll eingerichtete Küche mit Herd, Kühlschrank und allem, was man zum Kochen braucht. Das Schlaf-/Wohnzimmer verfügt über ein gemütliches Bett, einen geräumigen Kleiderschrank, einen Tisch fürs Homeoffice oder gemütliche Essen sowie eine Couch zum Entspannen. :) Sauber & gepflegt: Die Wohnung wird selbstverständlich frisch gereinigt an Sie übergeben. Ruhige Lage: Die Saarstraße in Lehndorf ist bekannt für ihre grüne und friedliche Atmosphäre. Sie wohnen away from the hustle and bustle, können aber die Natur und Erholung direkt vor der Haustür genießen. Perfekte Anbindung: Trotz der Ruhe sind Sie bestens angebunden. Die Buslinien (411, 431, 433) bringen Sie schnell und zuverlässig in die Innenstadt, zum Hauptcampus der Technischen Universität (TU) ( oder zur Ostfalia. Übrigens befindet die Bushaltestelle sich gegenüber der Wohnung. Für alle, die mit dem Rad unterwegs sind, sind die Wege schön und flach. Einkaufsmöglichkeiten: Edeka (am Saarsplatz), Aldi und Lidl sowie eine Pizzeria und Berliner Döner sind in der Nähe. Die Aufteilung im Überblick: Ein großes Hauptzimmer (Schlaf- und Wohnbereich kombiniert) voll ausgestattete Küche (inkl. Kühlschrank, Herd, Geschirr, Töpfe etc.), Waschmaschine, Staubsauger vorhanden Ein modernes Badezimmer mit Dusche und WC Ausreichend Stauraum in Schrank und Regalen Ideal für: Studierende der TU Braunschweig, der Ostfalia oder Mitarbeiter*In Praktikanten oder Werkstudenten für einen befristeten Zeitraum Berufseinsteiger in einer Übergangsphase Alle, die ein fertiges, unkompliziertes Zuhause suchen Wichtige Eckdaten: Adresse: Saarstraße, 38116 Braunschweig (Lehndorf) Verfügbarkeit: spätestens am 10.10.25 oder nach Vereinbarung Miete: 599 € warm (inkl. Nebenkosten, Heizung sowie Strom aber ohne Internet) Internetanschluss: 34,99 € Kaution: 1199 € Sonstiges: Nichtraucherwohnung, Haustiere leider nicht möglich. Sie sind interessiert? Dann freue ich mich über Ihre Nachricht! Schreiben Sie mir gerne ein paar Sätze zu Ihrer Person und zu Ihrem geplanten Mietzeitraum. Wir können dann ganz unverbindlich einen Termin für eine Besichtigung vereinbaren. Viele Grüße Vinc...

Послуги та зручності
  • З приватним туалетом
  • З загальним садом
  • З приватною вітальнею
  • З приватною кухнею

  • З ламінатом
  • З центральним опаленням
  • З приватним кухонним приладдям
  • З Wi-Fi
Дізнайтеся, що є поблизуПоруч Lehndorf-Watenbüttel, Брауншвейг
Listing location
Правила та переваги
  • Вік:At least 18
  • Стать:Будь-яка
  • Тип орендаря:Студенти, працюючі фахівці
  • Підходить для пар:Так

  • Дозволяється гра на музичних інструментах:Переговори
  • Дозволено перебування з домашніми тваринами:Немає
  • Дозволено куріння:Тільки за межами
Ваші гроші утримують протягом 48 годин після вашого заїздуЯкщо під час заїзду виявиться, що об’єкт не відповідає опису в оголошенні, повідомте нас протягом 48 годин, і ми повернемо вам кошти.
Ваші гроші у безпеці
Бронювання підтвердженоДень заїздупротягом 48 годин після заїзду
Як розраховується орендна плата
Щомісяця
Ви завжди сплачуєте орендну плату за весь місяць незалежно від того, коли заїжджаєте або виїжджаєте.
Політика скасування

Гнучке скасування

У разі скасування протягом 24 годин після підтвердження – Повне повернення орендної плати за перший місяць.

Якщо ви скасуєте, коли ваша дата заїзду:

  • Більше ніж за 30 днів — повне відшкодування орендної плати за перший місяць
  • Від 7 до 30 днів — відшкодування 50 % орендної плати за перший місяць
  • Менше ніж за 7 днів — не підлягає відшкодуванню.

Як орендувати це місце

Коли ви знайдете об’єкт нерухомості, який вам сподобається, забронювати його дуже просто. Орендарям та орендодавцю необхідно узгодити умови, перш ніж оформляти бронювання. Ось як це працює:

  1. Виберіть дати, щоб перевірити доступність.
  2. Зв'яжіться з орендодавцем, натиснувши кнопку «Зв’язатися».
  3. Представтесь орендодавцю. Задайте будь-які питання, які вас цікавлять.
  4. Коли будете готові бронювати, надішліть запит на бронювання.
  5. Коли орендодавець прийме запит і оплата буде здіійснена, бронювання житла буде завершено.

Вам не потрібно робити огляд на платформі HousingAnywhere, ось чому:

  1. Усі об’єкти нерухомості на платформі HousingAnywhere супроводжуються фото та чітким описом. Якщо щось незрозуміло, ви можете зв’язатися з орендодавцем.
  2. Обмеження перегляду дають однакові можливості всім, незалежно від того, чи ви місцевий житель чи живете за кордоном.
  3. Платформа HousingAnywhere гарантує, що житло відповідає оголошенню, надсилаючи орендодавцю виплати лише після того, як ви заїдете.

Скористайтеся кнопкою «Надіслати повідомлення орендодавцю», щоб розпочати безпечну розмову на нашій платформі. Ви можете ставити запитання, обговорювати умови та безпечно обмінюватися документами.

Зберігання ваших розмов на HousingAnywhere захищає вашу конфіденційність і допомагає уникнути шахрайства. Усі ваші повідомлення також зберігаються в одному місці для легкого доступу та як запис ваших угод.

Після підтвердження вашої оренди ми поділимося контактною інформацією орендодавця, щоб ви могли організувати своє заселення.

Після оформлення бронювання вам будуть доступні контактні дані орендодавця. Ви можете зв'язатися з орендодавцем, або продовжувати користуватися чатом HousingAnywhere. Усі наступні витрати на оренду можна безпечно оплатити на платформі HousingAnywhere.

Захист орендарів – це наша послуга, яка допоможе вам орендувати житло зі спокоєм. Ми утримуємо всі платежі, які ви здійснюєте через нашу платформу до заселення, включаючи орендну плату за перший місяць та будь-який депозит. Після вашого прибуття у вас є 48 годин, щоб перевірити, чи відповідає житло вашим очікуванням. Ми надсилаємо ваші гроші орендодавцю лише тоді, коли все гаразд.

Перегляньте це коротке відео, щоб дізнатися про всі способи, якими ми захищаємо вас, від безпечних платежів до допомоги у пошуку нового житла. Для отримання додаткової інформації ви також можете прочитати про захист орендарів.


Дата заїзду – Дата виїзду
Не готові подати заявку?Ставте питання орендодавцю, надсилайте інформацію та дізнавайтесь, чи є варіанти, які вам підходять. Отримуйте відповіді, які вам потрібні для оренди, з упевненістю.
Охоплено захистом орендарівГарантуємо вам безтурботний заїзд або повернемо кошти.
Переїзд без стресуЯкщо орендодавець скасує оренду в останню хвилину або затримає ваш переїзд, ви отримаєте допомогу в пошуку місця або тимчасового перебування в готелі.
Швидка підтримкаЯкщо щось піде не так з вашою орендою, ми можемо допомогти це виправити.
Легке відшкодування коштівМи зберігаємо ваш платіж у безпеці, доки ви не заселитесь. Якщо місце не відповідає опису, ви отримаєте відшкодування.
Як ви захищені